Palacio Ducal de Venecia
| Palazzo Ducal | ||
|---|---|---|
| Bien cultural italiano | ||
![]() Fachada a la Cuenca de San Marco. | ||
| Localización | ||
| País |
| |
| Localidad | San Marco | |
| Ubicación |
Venecia | |
| Dirección | Plaza de San Marcos (1) | |
| Coordenadas | 45°26′01″N 12°20′26″E / 45.433666666667, 12.340416666667 | |
| Información general | ||
| Usos | Museo | |
| Estilo | gótico | |
| Construcción | Siglo X y Siglo XI | |
| Remodelación | Siglo XV | |
| Propietario | Italia | |
| Ocupante | Dogo de Venecia | |
| Detalles técnicos | ||
| Plantas | 4 | |
| Diseño y construcción | ||
| Arquitecto |
Giovanni Bon Bartolomeo Bon Antonio Rizzo | |
| Mapa de localización | ||
![]() Palazzo Ducal Ubicación en Venecia. | ||
| http://palazzoducale.visitmuve.it/ y http://palazzoducale.visitmuve.it/en/ | ||
El Palacio Ducal de Venecia, es un edificio histórico italiano situado en el extremo oriental de la plaza de San Marcos, en el sestiere de San Marco. Es uno de los símbolos del poder de Venecia y obra principal del gótico veneciano. Sus dos fachadas más visibles miran hacia la laguna de Venecia y la plaza de San Marcos. El palacio fue residencia de los dux, magistrados supremos y máximos dirigentes de la República de Venecia, sede del gobierno y de la corte de justicia y prisión de la República veneciana.
Historia
Fue erigido presumiblemente entre los siglos X y XI sobre la base de un núcleo fortificado, constituido por un cuerpo central y torres en las esquinas. Alrededor del núcleo se desarrollaría una de las obras maestras del gótico veneciano. La primera gran reestructuración, que transformó la fortaleza originaria en un elegante palacio ya sin fortificar, se llevó a cabo en el siglo XII por el dux Sebastiano Ziani. A finales de 1200 se llevó a cabo una nueva ampliación.
Durante el gobierno de Bartolomeo Gradenigo (1339–1342) el palacio empezó a adquirir su forma actual. Una ampliación de 1424 debida al dux Francesco Foscari extendió el palacio por el lado de la Basílica de San Marcos. En 1442 se realizó un añadido importante, la Porta della Carta, proyecto de los arquitectos Giovanni Bon y Bartolomeo Bon (también autores de la Ca' d'Oro).
La parte interna (es decir, la que da a la parte del canal de Palacio y termina en el Ponte della Paglia ('Puente de la Heno'), y que hospedaba los apartamentos del Dux), fue edificada después del gran incendio de 1483, según el proyecto del arquitecto Antonio Rizzo. A lo largo del siglo XVI se alternaron incendios devastadores con importantes reformas, como la "scala dei giganti" ('escalera de los gigantes'). Precisamente uno de estos siniestros propició la creación del principal tesoro del edificio: la gigante Paraíso de Tintoretto, pintada para sustituir un mural dañado en un incendio.
A principios del siglo XVI se añadieron las llamadas prigioni nuove ('prisiones nuevas'), más allá del canal, por obra del arquitecto Antonio Contin. Este nuevo cuerpo de fábrica, que sería la sede de los "Signori di notte al criminal" ('Señores de noche de lo criminal'), magistrados encargados de la prevención y represión de los delitos penales, fue conectado al palacio mediante el "Puente de los Suspiros", cruzado por los condenados en su camino a las nuevas prisiones.
Después de la caída de la República de Venecia en 1797, el palacio no se utilizó ya como sede del príncipe y de las magistraturas sino que fue acondicionado para albergar oficinas administrativas. Las prisiones, llamadas i Piombi ('los plomos') a causa del revestimiento en ese material del tejado, conservaron su antigua función. Tras la anexión de Venecia al Reino de Italia, el palacio sufrió numerosas restauraciones, y en 1923 fue finalmente destinado a museo, función que conserva hoy día.
El edificio
El palacio, de forma cúbica, es como un gran bloque de mármol dorado por el sol.
Fachada
-

-
Relieve de Adán y Eva en una de las esquinas. -
Porta della carta. -
.jpg)
-
Palacio Ducal de Venecia, columnata meridional. Archivos del museo de Brooklyn, Colección Goodyear Archival.
El Palacio Ducal se desarrolla sobre tres alas en torno a los lados de un amplio patio central porticado, el cuarto lado estaría constituido por el cuerpo lateral de la basílica de San Marcos, antigua capilla palatina. Las fachadas principales, una frente a la plaza de San Marcos y otra frente al bacino di San Marco, presentan dimensiones muy parecidas, dado que la fachada que da al molo mide 71,5 metros de largo y se desarrolla sobre diecisiete arcadas, mientras que la que da a la placita, que tiene una arcada más de largo, mide 75 metros.[1] La parte más antigua del palacio es el ala que da a la laguna. Ambas fachadas están formadas por paredes macizas y pulidas sostenidas por dos pisos de pilares colocados uno encima del otro.
De acuerdo con la ley de gravedad, lo más pesado debe cargar lo más leve. Se esperaría, entonces, que la masa del edificio hubiera sido construida directamente sobre el suelo y que las ojivas estuvieran arriba. Sin embargo, construido y distribuido como lo fue, el edificio está calculado con tanta inteligencia que de ninguna manera produce una sensación de inestabilidad o fragilidad. Las columnas dan la impresión de cargar sin esfuerzo la gran construcción, que rehusando a posarse en tierra parece estar suspendida en el aire y es soportada por dos columnas de ojivas magníficas.
El pórtico de la planta baja se apoya en treinta y seis columnas. Esa arcada de la planta baja y la loggia que queda encima están decoradas con capiteles de los siglos XIV y XV, algunos de los cuales se reemplazaron por copias en el siglo XIX. La galería superior, abierta posee 71 columnas rematadas con óculos cuadrilobulados.
Más arriba, el muro liso, con solo grandes ventanas espaciadas en el paramento, presenta una decoración de tablero de mármol rosado y blanco.
En las esquinas del palacio varios grupos escultóricos del siglo XIV representan de izquierda a derecha el Juicio de Salomón, Adán y Eva, y Noé ebrio. Se cree que son obra de Filippo Calendario y varios artistas lombardos como Matteo Raverti y Antonio Bregno.
En 1438–1442, Giovanni Bon y Bartolomeo Bon construyeron y adornaron la Porta della Carta («Puerta del Papel»), que servía como entrada ceremonial al edificio. La entrada principal recibe este nombre porque en ella se exponían los decretos oficiales, o quizá es donde los escribanos públicos establecían sus pupitres, o porque cerca estaba el cartabum, los archivos de los documentos de estado. Es de estilo gótico flamígero de (1442). Flanqueada por pináculos góticos, con dos figuras de las Virtudes cardinales a cada lado, la puerta está coronada por un busto del evangelista Marcos sobre el cual se alza una estatua de la Justicia con sus símbolos tradicionales de la espada y la balanza. En el espacio por encima de la cornisa, hay un retrato escultórico del dogo Francesco Foscari arrodillándose ante el león de San Marcos. Esto es, sin embargo, una obra del siglo XIX debida a Luigi Ferrari, creada para reemplazar al original que se destruyó en 1797.
Hoy, la entrada pública al Palacio Ducal es a través de la Porta del Frumento, en la fachada del edificio que da al canal.

Patio

La fachada principal del patio es una obra renacentista, con una extraordinaria decoración escultórica y una sucesión de arquerías y la ornamentación a base de pilastras, frisos y óculos. Los pozos con brocal de bronce son del siglo XVI.
Junto al pórtico Foscari se halla la pequeña fachada del Reloj, realizada en 1615 por Monopola. A su lado y encima del pórtico se alza un edificio del siglo XV coronado con pináculos que sostienen estatuas. En un extremo del pórtico se abre la conocida escalera, Scala del Giganti, erigida entre los años 1483 y el 1485 sobre proyecto de Antonio Rizzo, quien la decoró con preciosos relieves entre los cuales sobresalen Fama y Victoria. La Scala dei Giganti debe su nombre a las dos estatuas marmóreas de Sansovino representando a Marte y Neptuno que datan de 1567. Los escalones monumentales unen el patio con la galería interior del primer piso y era el lugar donde se representaba la coronación de los dogos. Las dos estatuas colosales debían representar la potencia y el dominio de Venecia sobre la tierra firme y sobre el mar. Entre ambas estatuas se encontró colocado un tiempo el Leone andante de Luigi Borro.[1]
Museo dell'Opera
A lo largo de los siglos, el Palacio Ducal ha sido reestructurado y restaurado innumerables veces. Debido a los incendios, a los fallos estructurales y a las infiltraciones, así como a las nuevas exigencias organizativas y a las modificaciones o revisiones completas de los adornos, apenas ha habido un momento en el que no se haya realizado algún tipo de obra en el edificio. Desde la Edad Media, las actividades de mantenimiento y conservación estaban en manos de una "oficina técnica", que se encargaba de todas esas operaciones y supervisaba a los trabajadores y sus obras: la Opera, o la fabbriceria o la procuratoria. A partir de mediados del siglo XIX, el Palacio parecía estar en tal estado de decadencia que se cuestionaba su propia supervivencia; por ello, en 1876 se puso en marcha un importante plan de restauración. Las obras afectaron a las dos fachadas y a los capiteles de la arcada de la planta baja y de la logia superior: 42 de ellos, que parecían estar en un estado especialmente ruinoso, fueron retirados y sustituidos por copias. Los originales, algunos de los cuales eran obras maestras de la escultura veneciana de los siglos XIV y XV, se colocaron, junto con otras esculturas de las fachadas, en un espacio específicamente reservado para ello: el Museo dell'Opera. Tras someterse a minuciosos y cuidadosos trabajos de restauración, se exponen ahora, sobre sus columnas originales, en estas 6 salas del museo, atravesadas por un antiguo muro de grandes bloques de piedra, vestigio de una versión anterior del Palacio. Las salas también contienen fragmentos de estatuas e importantes obras arquitectónicas y decorativas en piedra procedentes de las fachadas del Palacio.
Apartamentos del Dux
Las habitaciones en las que vivía el Dux se encontraban siempre en esta zona del palacio, entre el Río de la Canónica - la entrada de agua del edificio - la actual Escalera dorada y el ábside de la Basílica de San Marcos. El desastroso incendio de esta parte del edificio en 1483 obligó a realizar importantes obras de reconstrucción, completándose los apartamentos del Dux en 1510. El núcleo de estos apartamentos forma una residencia prestigiosa, aunque no especialmente grande, ya que las habitaciones más cercanas a la Escalera dorada tenían una función mixta, privada y pública. En los apartamentos privados, el Dux podía dejar a un lado los adornos del cargo para retirarse al final del día y cenar con los miembros de su familia en medio de los muebles que había traído de su propia casa (y que, a su muerte, serían retirados rápidamente para dar paso a la propiedad del nuevo Dux elegido).
- La Cámara Escarlata toma posiblemente su nombre del color de las vestimentas de los consejeros y asesores ducales para los que era la antesala. El techo tallado, adornado con los escudos de armas del Dux Andrea Gritti, forma parte de la decoración original, probablemente diseñada por Biagio d'Antonio y Pietro da Faenza. Entre la decoración de las paredes, destacan dos lunetos pintados al fresco: uno de Giuseppe Salviati, el otro de Tiziano.
- La sala del "Scudo" debe su nombre al escudo del Dux reinante que se exhibía aquí mientras concedía audiencias y recibía invitados. El escudo que se expone actualmente es el de Ludovico Manin, el Dux que reinaba cuando la República de San Marcos llegó a su fin en 1797. Es la sala más grande de los apartamentos del Dux y ocupa toda la anchura de esta ala del palacio. La sala se utilizaba como sala de recepción y su decoración con grandes mapas geográficos pretendía subrayar la gloriosa tradición que estaba en la base del poder veneciano. Los dos globos terráqueos del centro de la sala datan de la misma época: uno muestra la esfera de los cielos, el otro la superficie de la Tierra.
- La Sala Erizzo debe su nombre al Dux Francesco Erizzo (1631-1646) y está decorada de la misma manera que las anteriores: un techo de madera tallada, con dorados sobre un fondo azul claro, y una chimenea de la escuela lombarda. Desde aquí, una pequeña escalera conduce a una ventana que daba acceso a un jardín en el tejado.
- La Sala Stucchi o Priùli tiene un doble nombre debido a las obras de estuco que adornan la bóveda y los lunetos, que datan de la época del dux Marino Grimani (1595-1605), y la presencia de los escudos de armas del Dux Antonio Priùli (1618-1623), que se pueden ver en la chimenea, coronada por figuras alegóricas. Los estucos de las paredes y el techo fueron encargados posteriormente por otro Dux Pietro Grimani (1741-1752). En esta sala hay varias pinturas que representan la vida de Jesucristo, así como un retrato del rey francés Enrique III de Francia (quizás de Tintoretto) debido a su visita a la ciudad en 1574 en su camino desde Polonia para asumir el trono francés que quedó vacante con la muerte de su hermano Carlos IX de Francia.
- Directamente comunicado con el Salón de los Escudos, el Salón de los Filósofos toma su nombre de los doce cuadros de filósofos antiguos que se instalaron aquí en el siglo XVIII, para ser sustituidos posteriormente por obras alegóricas y retratos de Dux. A la izquierda, una pequeña puerta conduce a una estrecha escalera, que permitía al Dux pasar rápidamente de sus apartamentos a las salas de los pisos superiores, donde se celebraban las reuniones del Senado y del Gran Consejo. Sobre el otro lado de esta puerta, se encuentra un importante fresco de San Cristóbal de Tiziano.
- El nombre de la Sala de la Esquina se debe a la presencia de varias pinturas que representan al Dux Giovanni I Cornaro (1625-1629). La chimenea, realizada en mármol de Carrara, está decorada con un friso de ángeles alados sobre delfines alrededor de una figura central del León de San Marcos. Al igual que la siguiente sala, no cumplía ninguna función específica; se reservaba para el uso privado del Dux.
- La Sala de las Equerries era el acceso principal a los apartamentos privados del Dux. Las equerries de palacio eran nombradas de por vida por el propio Dux y debían estar a su disposición en todo momento.
Cámaras institucionales

Las partes institucionales constan de una larga serie de piezas con función institucional, de recepción y de representación. En ellas se encuentran una gran colección de obras de arte.

Cárcel antigua o Piombi
Antes del siglo XII, había celdas de detención dentro del Palacio Ducal, pero durante los siglos XIII y XIV se crearon más espacios carcelarios que ocupaban toda la planta baja del ala sur. De nuevo, esta distribución cambió hacia 1540, cuando se construyó un recinto en la planta baja del ala este. Debido a sus cualidades de oscuridad, humedad y aislamiento, se les conoció como los Pozzi (los Pozos).[2] En 1591 se construyeron más celdas en el ala superior oriental. Debido a su posición, directamente bajo el tejado de plomo, fueron conocidas como Piombi.[2] Entre los reclusos famosos de la prisión estaban Silvio Pellico y Giacomo Casanova. Este último, en su biografía, describe haber escapado por el tejado, volver a entrar en el palacio y salir por la Porta della Carta.
Puente de los Suspiros y las nuevas cárceles

Un pasillo conduce al Puente de los Suspiros, construido en 1614 para unir el Palacio Ducal con la estructura destinada a albergar las Cárceles Nuevas.[3] Cerrado y cubierto por todos sus lados, el puente contiene dos pasillos separados que discurren uno al lado del otro. El que los visitantes utilizan hoy en día unía las Prisiones con las salas del Magistrato alle Leggi y la Quarantia Criminal; el otro unía las prisiones con las salas de la Abogacía del Estado y el Parlatorio. Ambos pasillos están unidos a la escalera de servicio que lleva de las celdas de la planta baja de los Pozzi a las celdas del techo de los Piombi.
El famoso nombre del puente data del periodo romántico y se supone que hace referencia a los suspiros de los presos que, al pasar de la sala de audiencias a la celda en la que cumplirían su condena, echaban un último vistazo a la libertad al vislumbrar la laguna y la San Giorgio a través de las pequeñas ventanas. A mediados del siglo XVI, se decidió construir una nueva estructura al otro lado del canal, al lado del palacio, que albergaría las prisiones y las cámaras de los magistrados, conocida como la Notte al Criminal. El edificio, unido al palacio por el Puente de los Suspiros, pretendía mejorar las condiciones de los presos con celdas más grandes, luminosas y ventiladas. Sin embargo, algunas secciones de las nuevas prisiones no alcanzan este objetivo, especialmente las que tienen pasillos en todos los lados y las celdas que dan al patio interior del edificio. Siguiendo la tradición anterior, cada celda estaba revestida con tablones de alerce superpuestos y clavados.

Obras de arte

- Madonna in trono col Bambino
- Mosè fa distruggere il vitello d'oro, 1682-1685
- Andrea Vicentino
- La battaglia di Lepanto, 1595-1605
- Eva, XV secolo
- Adamo, XV secolo
- Ritratto dei doge Giovanni Mocenigo e Mario Barbarigo, 1580-1590
- Resurrezione e tre avogadori, 1576 circa
- La conquista notturna di Padova, 1583-1584
- Papa Alessandro III benedice il doge Ziani
- Nettuno offre a Venezia le ricchezze del mare, 1740
- Giovan Battista Zelotti
- Il Tempo, le Virtù e l'Invidia liberati dal Male
- Compianto sul Cristo morto, 1472 circa
- Incoronazione della Vergine, 1365-1368
- Visiones del más allá, 1490 circa
- Tríptico de los eremitas, 1505
- Tríptico de santa Wilgefortis, 1497 circa
- Venezia incoronata dalla Vittoria accoglie le province soggette, 1582-1584
- L'esercito crociato assale Costantinopoli, 1587 circa
- Neptuno, 1567
- Marte, 1567
- Madonna in gloria e tre advogadori, 1604 circa
- Vittoria dei veneziani sui turchi ai Dardanelli, 1660-1665
- Il Padre Eterno, Venezia in tronco con le Virtù e Mercurio che guida vecchi e giovani incatenati, 1615 circa
- Cristo deriso, inizio XVI secolo
- Il Paradiso, 1588-1594
- Vittoria dei veneziani sui ferraresi ad Argenta, 1579-1584
- Il doge Nicolò da Ponte riceve da Venezia una corona d'alloro, 1584
- Arianna trovata da Bacco, 1576
- Il doge Girolamo Priuli riceve dalla Giustizia la bilancia e la spada, 1565-1567
- Mercurio e le grazie
- Pallade allontana da Marte
- La fucina di Vulcano
- Madonna col Bambino e due angeli, 1519 circa
- San Cristoforo, 1523
- El dux Antonio Grimani arrodillado ante la Fe, 1570-1575
- Il doge Contarini torna vittorioso in città dopo la vittoria contro i genovesi, 1585-1586
- L'apoteosi di Venezia, 1582
- Vecchio orientale e giovane donna
- Giunone offre a Venezia il corno ducale
- Aracne o la Dialettica, 1575-1578
- Marte e Nettuno, 1575-1578
- Il ratto di Europa, 1576-1580
- Venezia in trono con la Pace e la Giustizia, 1575-1578
- Leone di San Marco, 1516
Planos
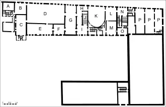
-
Plano de la planta baja.
A - Caffetteria, B - Guardaroba, C - Prigioni (Pozzi), D - Toilettes, E - Cortiletto dei Senatori, F - Scala dei Giganti, G - Cortile centrale, H - Entrada (Porta del Frumento), I - Arco Foscari, J - Museo dell'Opera: I locale, K - Museo dell'Opera: VI locale, L - Museo dell'Opera: V locale, M - Museo dell'Opera: IV locale, N - Museo dell'Opera: II locale, 0 - Museo dell'Opera: III locale, P - Porta della Carta, -
Plano de la planta de las loggias
A - Sala della Cancelleria Ducale, B - Sala della Milizia da Mar, C - Stanza della Bolla Dogale, D - Sala dello Scrigno, E - Scala d'Oro, F - Avogadria, G - Sala dei Notai, H - Sala dei Censori, I - Scala dei Censori, J - Cortiletto dei Senatori, K - Scala dei Giganti, L - Cortile, M - Porticato Foscari, N - Loggia Foscari -
Plano de la primera planta.
A - Appartamento del Doge, B - Sala dei Filosofi, C - Sala delle Mappe, D - Sala degli Stucchi, E - Sala Erizzo, F - Sala Grimani, G - Terrazza, H - Sala degli Scarlatti, I - Scala d'Oro, J - Sala della Quarantia Criminal, K - Scala del Censori, L - Sala della Quarantia Civil vecchia, M - Andito del Maggior Consiglio, N - Sala dell'Armamento, O - Sala del Maggior Consiglio, P - Andito, Q - Sala della Quarantia Civil nuova, R - Sala dello Scrutinio -
Plano de la segunda planta.
A - Archivio segreto, B - Antichiesetta, C - Chiesetta, D - Sala del Senato, E - Sala del Collegio, F - Anticollegio, G - Sala delle Quattro Porte, H - Andito, I - Atrio quadrato, J - Scala d'Oro, K - Sala del Consiglio dei Dieci, L - Sala della Bussola, M - Sala dei Tre Capi del Consiglio dei Dieci, N - Scala dei Censori, O - Sala dei Tre Inquisitori di Stato, P - Armamento del Consiglio dei Dieci
Véase también
- Plaza de San Marcos
- Piombi
- Puente de los Suspiros
- Palacio Cavalli-Franchetti
- Palazzo Ca' d'Oro (Venezia)
Referencias
- ↑ a b Brusegan, p. 134.
- ↑ a b Geltner, G., 2008. The Medieval Prison: A Social History (La prisión medieval: una historia social). Princeton: Princeton University Press. (pp.12) (en inglés)
- ↑ Geltner, G., 2008. The Medieval Prison: A Social History (La prisión medieval: una historia social). Princeton: Princeton University Press (pp. 13) (en inglés)
Bibliografía
- Brusegan, Marcello (2007). I palazzi di Venezia. Roma: Newton & Compton. pp. 121-142. ISBN 978-88-541-0820-2.
Enlaces externos
Wikimedia Commons alberga una categoría multimedia sobre el Palacio Ducal de Venecia.- Información práctica para visitar el Palacio Ducal en Venecia (en español).
- Visitar el Palacio Ducal (en español).
- El Palacio Ducal en Venecia.es, la guía turística de la ciudad (en español).
- Visión arquitectónica e historia del Palacio Ducal (en español).
- Palacio Ducal
_Doge's_Palace_facing_the_sea.jpg)
