Hiller OH-23 Raven
| Hiller OH-23 Raven | ||
|---|---|---|
![]() Hiller OH-23.
| ||
| Tipo |
Helicóptero de reconocimiento militar Helicóptero ligero multipropósito | |
| Fabricante |
| |
| Introducido | 1948 | |
| Usuario principal |
| |
El Hiller OH-23 Raven fue un helicóptero de reconocimiento militar ligero triplaza de observación, basado en el Hiller Model 360. El Model 360 fue designado por la compañía como UH-12 ("UH" por United Helicopters),[1] que voló por primera vez en 1948. El entrenador OH-23 fue apodado jocosamente "Hiller Killer" por los estudiantes de la Aviación del Ejército estadounidense que tuvieron que volar en él.[2]
Desarrollo
En 1947, United Helicopters (más tarde renombrada Hiller Aircraft) desarrolló el prototipo del helicóptero Model 360X. Un año más tarde, el 14 de octubre de 1948, la Autoridad Aeronáutica Civil (CAA) emitió un certificado de producción para el Model 360 como UH-12. En 1949, el UH-12 se convirtió en el primer helicóptero en realizar un vuelo transcontinental desde California a Nueva York. Cuando Hiller mejoró el motor y las palas del rotor, la compañía designó al nuevo modelo como UH-12A. Fue este modelo el que sería adoptado por los servicios militares francés y estadounidense, siendo usado también por operadores comerciales civiles en varios países.
Historia operacional
El H-23 Raven se desempeñó como helicóptero utilitario, de observación y MedEvac durante la guerra de Corea. Las variantes del modelo fueron de la A a la D, F y G. El H-23A tenía un parabrisas delantero inclinado. El H-23B fue usado como helicóptero entrenador básico. Comenzando con el UH-23C, todos los modelos posteriores presentaron la cabina "bol de peces de colores", similar a la del Bell 47.
El Raven usaba el sistema de control cíclico "Rotor-Matic" de Hiller, con dos pequeñas paletas servo del rotor perpendiculares a las palas del rotor principal. Las paletas estaban unidas a la columna de control, de modo que el movimiento de la columna hacía que cambiara el paso de las paletas del servo, cargando la pala del rotor principal para que se produjeran los cambios cíclicos deseados en el mismo.[3] El OH-23 tenía una velocidad máxima de 156 km/h. Tenía un rotor principal bipala y un rotor de cola también bipala. Tanto el OH-23B como el OH-23C estaban propulsados por un motor Franklin O-335-5D. El OH-23D era una versión puramente militar con un motor O-435-23C y una transmisión más fiable. La mayoría de OH-23D fueron reemplazados por el OH-23G, la versión más común del Raven, con un más potente motor bóxer Lycoming O-540-9A de seis cilindros, refrigerado por aire y 305 hp. El OH-23G podía acomodar a tres personas. La versión MEDEVAC llevaba dos camillas o vainas externas montadas en los patines. El Raven entró en servicio como explorador durante la primera parte de la guerra de Vietnam, antes de ser reemplazado por el OH-6A Cayuse a principios de 1968. Un Raven pilotado por Hugh Thompson Jr. jugó un papel crucial en la restricción de la Matanza de Mỹ Lai. Cuando un Raven de la 59th Aviation Company se extravió al norte de la DMZ coreana en agosto de 1969, fue derribado y la tripulación fue hecha prisionera hasta que fue liberada el 2 de diciembre.
El Raven podía ser armado con dos ametralladoras M37C de 7,62 mm en el subsistema de armamento XM1 o dos M60C del mismo calibre en el subsistema M2. El sistema de mira XM76 se usaba para apuntar las armas.
El No. 705 Training Squadron de la Marina Real usó los Hiller HTE-2 durante varios años desde 1953, y más tarde operó Hiller 12E durante muchos más años como helicóptero entrenador básico en RNAS Culdrose, localizada en Cornualles, Inglaterra.
Variantes

_bw.jpg)

Militares
- YH-23
- Un Model UH-12A, modificado con cabina de dos asientos y motor Franklin de 178 hp, para evaluación por el Ejército estadounidense.[4]
- H-23A
- Versión de producción inicial con motor Franklin O-335-4 de 133 kW (178 hp) y cabina biplaza, 100 construidos para el Ejército estadounidense[5] y 5 de evaluación por la Fuerza Aérea estadounidense.[6]
- H-23B
- H-23A con tren de aterrizaje de patines/ruedas y motor O-335-6 de 149 kW (200 hp) (algunos más tarde remotorizados con un VO-435-23B de 250 hp), redesignados OH-23B en 1962, 273 construidos para el Ejército estadounidense[5] y 81 para exportaciones militares.
- H-23C
- Model UH-12C con cabina triplaza, cubierta de una pieza y palas del rotor metálicas, 145 construidos para el Ejército estadounidense. Redesignados OH-23C en 1962.[5]
- H-23D
- H-23C con nuevos rotor y transmisión, motor Lycoming VO-435-23B de 187 kW (250 hp), 348 construidos para el Ejército estadounidense. Redesignados OH-23D en 1962.[5]
- H-23E
- Model UH-12E, no comprado.
- H-23F
- Model UH-12E-4, modelo de cuatro asientos con extensión de cabina de 63,5 cm y motor VO-540-A1B de 305 hp, redesignado OH-23F en 1962, 22 construidos para el Ejército estadounidense.[5]
- H-23G
- Versión de control doble de tres asientos del H-23F, redesignado OH-23G en 1962, 793 construidos.[5]
- HTE-1
- Versión de la Armada estadounidense del Model UH-12A con motor Franklin O-335, dos asientos con control doble, y tren de aterrizaje triciclo de ruedas, 17 construidos.[7]
- HTE-2
- Versión de la Armada estadounidense del H-23B con motor Franklin O-335-6, 35 construidos.[7][8]
- Hiller HT Mk 1
- Designación de la Marina Real para 20 antiguos HTE-2 de la Armada estadounidense.[9]
- Hiller HT Mk 2
- UH-12E para la Marina Real. 21 suministrados.[9]
- CH-112 Nomad
- Designación militar canadiense.
Civiles
- UH-12A
- Modelo original de producción para el Ejército estadounidense, propulsado por un motor Franklin 6V4-178-B33 de seis cilindros y refrigerado mediante ventilador, con una potencia máxima de 178 hp a 3000 rpm. Las palas del rotor principal (producidas por Parsons Industries Inc.) eran de láminas de madera sólidas. El cuerpo de la pala estaba de hecho construido de numerosas láminas de madera de tiras y tacos, diseñado para proporcionar una pala fuerte pero altamente flexible. Toda la superficie de la pala estaba recubierta con fibra de vidrio, con el borde de ataque con una lámina extra de acero inoxidable. El rotor de cola era enteramente de construcción metálica.
- UH-12B (HTE-2)
- Versión de entrenamiento para la Armada estadounidense, que lo designó HTE-2 antes de 1962.
- UH-12C
- Versión triplaza, equipada con palas del rotor de madera y cubierta de una pieza "bol de peces de colores". Designación del Ejército estadounidense H-23C.
- UH-12D
- Versión mejorada del H-23C para el Ejército estadounidense, que lo designó H-23D.
- UH-12E
- Versión de doble mando de tres asientos del H-23D.
- UH-12ET
- Versión propulsada por turbina del UH-12E, equipada con un motor turboeje Allison 250.
- UH-12E-3
- Nueva versión de producción de tres asientos.
- UH-12E-3T
- Nueva versión de producción propulsada por turbina.
- UH-12-E4
- Versión civil de cuatro asientos. Designación del Ejército estadounidense H-23F. Propulsada por el VO-540. Equipo de conversión disponible para modelos E-12.[10]
- UH-12E-4T
- Versión de producción propulsada por turbina de cuatro asientos.
- UH-12L-4
- Versión aligerada con ventanas de cabina más anchas.
Operadores

- Columbia Helicopters[17]
- Ejército de los Estados Unidos[18]
- Armada de los Estados Unidos[18]
- Real Policía Tailandesa[24]
Cultura popular
Un UH-12 civil registrado en el Reino Unido fue visto atacando a James Bond en la película Desde Rusia con amor de 1963. Un UH-12E4 (una aeronave civil registrada en el Reino Unido con los colores del Ejército estadounidense) fue usado en la película Goldfinger de Bond de 1964. También se vio uno en la película Sólo se vive dos veces de Bond de 1967.
La película El ataque de los tomates asesinos de 1978 contiene metraje de un accidente real de helicóptero. Un Hiller Aircraft UH-12E, con matrícula civil estadounidense N81959, sufrió un golpe en el rotor de cola durante una escena donde el helicóptero se suponía que debía aterrizar en un huerto de tomates por detrás de unos policías. La aeronave giró fuera de control, rodó y se incendió. El piloto del helicóptero escapó sin heridas serias.
El modelo ha sido visto en otras muchas películas.
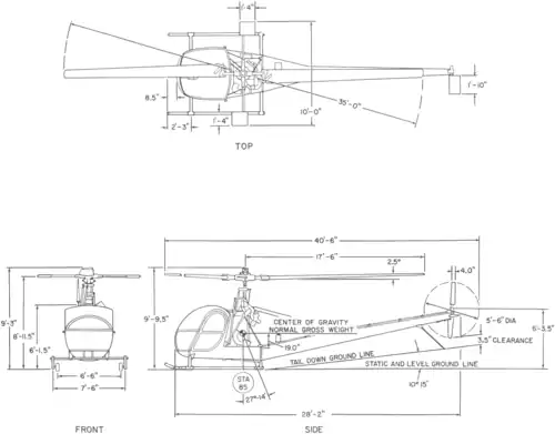
Especificaciones (H-23D)
Referencia datos: United States Military Aircraft since 1909[28]

Características generales
- Tripulación: Dos
- Longitud: 8,5 m (27,8 ft)
- Diámetro rotor principal: 10,80 m[29]
- Altura: 3 m (9,8 ft)
- Área circular: 91,5 m² (984,9 ft²)
- Peso vacío: 825 kg (1818,3 lb)
- Peso máximo al despegue: 1227 kg (2704,3 lb)
- Planta motriz: 1× motor bóxer de seis cilindros refrigerado por aire Lycoming VO-435-23B[29].
Rendimiento
- Velocidad máxima operativa (Vno): 153 km/h (95 MPH; 83 kt) a nivel del mar
- Velocidad crucero (Vc): 132 km/h (82 MPH; 71 kt)
- Alcance: 317 km (171 nmi; 197 mi)
- Techo de vuelo: 4025 m (13 205 ft)
- Régimen de ascenso: 5,3 m/s (1043 ft/min)
Aeronaves relacionadas
Aeronaves similares
Secuencias de designación
- Secuencia H-_ (Helicópteros de la USAF, 1948-1962): ← H-20 - H-21 - H-22 - H-23 - H-24 - H-25 - H-26 →
- Secuencia HT_E (Helicópteros de Entrenamiento de la Armada estadounidense, 1948-1962 (Hiller, 1948-1962)): HTE
- Secuencia _H-_ (Helicópteros estadounidenses, 1962-presente): OH-13/UH-13J - UH-19 - CH-21 - OH-23 - UH-25 - CH-34 - CH-37 →
- Secuencia C_-_ (Aeronaves de las Fuerzas Canadienses, 1968-presente): ← CC-109 - CSR-110 - CF-111 - CH-112 - CH-113 - CT-114 - CC-115 →
- Secuencia Z._ (Helicópteros del Ejército del Aire español, 1954-1978): ← XZ.3 - XZ.4 - Z.5 - Z.6 - Z.7/B/A - Z.8 - Z.9 →
Véase también
- Anexo:Aeronaves de la Fuerza Aérea de los Estados Unidos (históricas y actuales)
- Anexo:Aeronaves militares de los Estados Unidos (navales)
- Anexo:Aeronaves históricas del Ejército del Aire de España
Referencias
- ↑ Donald, David. The Complete Encyclopedia of World Aircraft. New York: Barnes & Noble Books, 1998.
- ↑ «Fort Wolters Tour: The Aircraft». Archivado desde el original el 19 de febrero de 2012. Consultado el 28 de octubre de 2019.
- ↑ Bridgman 1953, pp. 240–241.
- ↑ Harding 1990, p.141.
- ↑ a b c d e f Harding 1990, p.142.
- ↑ Swanborough and Bowers 1963, p.274.
- ↑ "Hiller HTE-2 'Raven'". Aero-web.org. Retrieved 15 November 2009.
- ↑ A.C. Bass (November 1960). «E-4 "Station Wagon"». Flying Magazine.
- ↑ «World Air Forces 1987 pg. 40». flightglobal.com. Consultado el 23 de marzo de 2013.
- ↑ «Policia de la Provincia de Buenos Aires UH-12E». Consultado el 23 de marzo de 2013.
- ↑ «CH-112 Nomad». canadianwings.com. Consultado el 23 de marzo de 2013.
- ↑ a b «World Helicopter Market 1968 pg. 50». bell47.net. Consultado el 23 de marzo de 2013.
- ↑ «US →South Korea (1966-1967)». armstrade.sipri.org. Archivado desde el original el 14 de abril de 2010. Consultado el 23 de marzo de 2013.
- ↑ «South Korean Army OH-23». Demand media. Consultado el 23 de marzo de 2013.
- ↑ «World Helicopter Market 1968 pg. 59». flightglobal.com. Consultado el 23 de marzo de 2013.
- ↑ a b «The H-23 Raven Helicopter». bell47.net. Consultado el 26 de marzo de 2013.
- ↑ a b c «World Helicopter Market 1968 pg. 52». bell47.net. Consultado el 23 de marzo de 2013.
- ↑ «World Helicopter Market 1968 pg. 53». flightglobal.com. Consultado el 23 de marzo de 2013.
- ↑ «Koninklijke Luchtmacht UH-12E». Consultado el 23 de marzo de 2013.
- ↑ «World Air Forces 1987 pg. 77». flightglobal.com. Consultado el 23 de marzo de 2013.
- ↑ «World Helicopter Market 1968 pg. 54». flightglobal.com. Consultado el 23 de marzo de 2013.
- ↑ a b «World Helicopter Market 1968 pg. 55». bell47.net. Consultado el 23 de marzo de 2013.
- ↑ «Royal Navy Fleet Air Arm UH-12B HTE-2». Consultado el 23 de marzo de 2013.
- ↑ «World Helicopter Market 1968 pg. 51». flightglobal.com. Consultado el 23 de marzo de 2013.
- ↑ «World Air Forces 1975 pg. 314». flightglobal.com. Consultado el 23 de marzo de 2013.
- ↑ Swanborough and Bowers 1963, p.276.
- ↑ a b Harding 1990, p.143.
Bibliografía
- Bridgman, Leonard. Jane's All the World's Aircraft 1953–54. London: Sampson Low, Marston & Co. Ltd, 1953.
- Harding, Stephen. U.S. Army Aircraft since 1947. Shrewsbury, UK: Airlife, 1990. ISBN 978-1-85310-102-1
- Spenser, Jay. Vertical Challenge: The Hiller Aircraft Story. AuthorHouse. 2003. ISBN 978-0-7596-3398-8
- Swanborough, F.G. and Bowers, Peter M. United States Military Aircraft since 1909. London: Putnam, 1963.
- Swanborough, Gordon and Bowers, Peter M. United States Navy Aircraft since 1911 (second edition). London: Putnam, 1976. ISBN 978-0-370-10054-8]* Thetford, Owen. British Naval Aircraft since 1912 (fourth edition). London: Putnam, 1978. ISBN 978-0-370-30021-4
- OH-23 Factsheet
