Gowanus Batcave
| Gowanus Batcave | ||
|---|---|---|
![]() | ||
| Localización | ||
| País | Estados Unidos | |
| Ubicación | Brooklyn, Nueva York | |
| Dirección | 153 2nd Street | |
| Coordenadas | 40°40′36″N 73°59′20″O / 40.676629, -73.988899 | |
| Información general | ||
| Usos | Central eléctrica | |
| Estilo | Neorrománico y neoclásico | |
| Finalización | 1903 | |
La Central Power Station of the Brooklyn Rapid Transit Company, comúnmente conocida como Batcave o Gowanus Batcave (lit. Baticueva de Gowanus), es una antigua central eléctrica de tránsito junto al Canal Gowanus en 153 Second Street en la zona de Gowanus, en el distrito de Brooklyn de la ciudad de Nueva York (Estados Unidos). Fue construido entre 1901 y 1904, mientras que Brooklyn Rapid Transit Company estaba expandiendo su servicio de tranvía y tránsito rápido. Dejó de operar en 1972, permaneció abandonada durante más de dos décadas, y se convirtió en el hogar de una comunidad de okupas a principios de los años 2000. Los propietarios, que estaban planeando remodelar el sitio, construyendo condominios llamados Gowanus Village, sacaron a los okupas y aumentaron la seguridad en 2006. Los planes de Gowanus Village no se materializaron y poco tiempo después se convirtió en un espacio popular para grafitis y eventos subterráneos.
En 2012, Joshua Rechnitz compró la propiedad por 7 millones de dólares con planes para convertirlo en The Powerhouse Workshop, un espacio anunciado como un centro para artistas. Lo administra la Powerhouse Environmental Arts Foundation. En 2019, la Comisión de Preservación de Monumentos Históricos de la Ciudad de Nueva York lo designó como un monumento oficial de la ciudad.
Primeros años y construcción
.png)
Un mapa de Sanborn de 1886 muestra que el solar había sido la sede de Nassau Sulphur Works y Smith and Shaw Mattress Materials and Paper Stock.[1] A finales del siglo XIX, a medida que se expandía la Brooklyn Rapid Transit Company (BRT), se incrementó la demanda de su suministro de energía. En el tiempo anterior a la construcción de la Central Power Station, el sistema había sido operado completamente por corriente continua, con impulsores utilizados donde las distancias largas lo requerían. A medida que el territorio se alejaba cada vez más de las centrales eléctricas y la empresa buscaba formas de aumentar la flexibilidad para adaptarse al crecimiento futuro, se decidió que la mejor forma de aumentar la capacidad energética era adoptar un nuevo sistema que permitiera para que utilicen estaciones grandes y únicas en ubicaciones centrales con acceso conveniente al carbón y al agua. La corriente podría distribuirse sin pérdida excesiva a cualquier parte del sistema, y los alimentadores de alta tensión subterráneos eliminaron la necesidad de tender cables aéreos pesados.[2]
La necesidad de una nueva central eléctrica se enfatizó cuando una central eléctrica en Ridgewood, en Queens, se incendió el 4 de diciembre de 1900.[3] : 11 [4] El mes siguiente, The Brooklyn Daily Eagle informó que se había encontrado un sitio en el Canal Gowanus, un centro industrial activo en South Brooklyn.[5] El sitio, ubicado en la Tercera Avenida con calle Primera, tenía fácil acceso a carbón, agua y otros suministros. Era lo suficientemente grande como para albergar un nuevo edificio y una gran reserva de carbón, al mismo tiempo que permitía una futura expansión.[6][2]
Charles Edward Roehl supervisó la construcción.[3] : 12 [7] El trabajo en los cimientos comenzó en mayo de 1901 y finalizó en enero de 1902, aunque el trabajo adicional se retrasó debido a la escasez de equipos y las huelgas laborales.[3] : 11 [8][9] En ese momento, se calculó que la Central Power House costaría 3 millones de dólares. La fachada de ladrillo fue erigida en 1902.[3] : 11 La construcción se completó en 1903,[10] y el primer motor comenzó a funcionar en marzo del mismo año.[11] En junio de 1903 ya había cuatro motores operativos y al año siguiente la estructura se declaró "prácticamente terminada", con los ocho motores en funcionamiento.[3] : 11 [12]
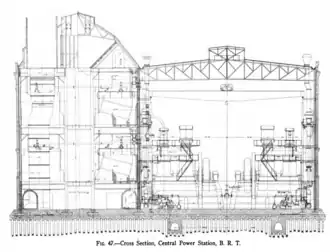
El diseño de la Central Power Station, que combina elementos del neorrománico y neoclásico, pudo haber sido creado por Thomas E. Murray, pero hay poca evidencia definitiva en los medios contemporáneos.[3][10] El edificio está hecho de ladrillo rojo con adornos de piedra azul, encima de pilotes coronados por una cama de hormigón de unos 2 m espesor. Su diseño se dividió en dos partes: en la sur está la sala de máquinas y dinamo, y en la norte, la sala de calderas, que era considerablemente más alta y contenía dos pisos con almacenamiento de carbón en la parte superior.[2] El frente, en la Tercera Avenida, es 55,9 m largo, y la profundidad del edificio 56,9 m, aunque la parte que ocupaban las calderas es de 6 m más corto. El techo sobre las salas de operaciones y de calderas se rellenó entre los hierros en T con teja de terracota quemada dura de 76 por 305 por 610 mm colocada en cemento Portland, cubierta con un techo de escoria y cemento.[2] : 118 [3] : 12 Las cartas brooklyn rapid transit company estaban inscritas en el costado del edificio de la caldera.[3] : 12
El carbón se llevaba a la planta en barcazas a través del canal adyacente. Los transportadores lo movían para triturarlo y luego almacenarlo en la parte superior de la sala de calderas, para usarlo en estas según en función de las necesidades. Para facilitar el almacenamiento adicional de carbón, los propietarios compraron un lote adicional en 1903. En el otro edificio, ocho motores de 4000 caballos de fuerza producían corriente continua y alterna mediante diferentes conjuntos de generadores. La corriente continua se utilizó para alimentar las líneas de tren cercanas, mientras que la corriente alterna se envió a través de cables subterráneos en conductos de terracota a subestaciones alrededor de la ciudad, que a su vez la convertirían en corriente continua.[3] : 14–15
El BRT se convirtió en Brooklyn-Manhattan Transit Corporation (BMT) en 1923 tras quebrar a raíz del naufragio de Malbone Street.[3] : 15 [13] En 1939, poco antes de que se disolviera la Junta de Transporte de la Ciudad de Nueva York y se demoliera la línea BMT Fifth Avenue, la Central Power Station pasó a ser la subestación # 25. Después de ser renumerada, comenzó a recibir corriente alterna de Williamsburg Power House para convertirla en corriente continua.[3] : 15 En los años 1950 se demolió la sala de calderas.[10][14] La casa de máquinas suministró energía a la línea de la Cuarta Avenida del metro de Nueva York, anteriormente operada por el BMT, hasta 1972, cuando la Autoridad de Tránsito de Nueva York vendió al gobierno de Nueva York.[3] : 15
Abandono
Comunidad de okupas
.jpg)
La Baticueva se convirtió en el hogar de okupas a principios de los años 2000. Uno de los primeros okupas, Zach Edminster, dijo que él y un pequeño grupo comenzaron a quedarse allí a partir de 2001.[15] Si bien solo unas pocas personas se quedaron allí al principio, el tamaño del grupo comenzó a crecer rápidamente, compuesto principalmente por adolescentes sin hogar y fugitivos.[15][16] Se formó una comunidad, estableciendo reglas de conducta que incluyen la prohibición del uso de drogas duras y la organización de tareas como el compostaje y la eliminación de desechos. Instalaron baños que funcionaban con agua de lluvia y tendieron una línea eléctrica desde el puente de Carroll Street para alimentar un refrigerador y un televisor. Por ese entonces, dentro de la comunidad de okupas y luego entre otros lugareños, el edificio había comenzado a ser conocido como la "Baticueva", llamada así por los murciélagos que se afirma que alguna vez vivieron allí,[17] o, según uno de los okupas, "porque eso parecía tener una cantidad apropiada de ambigüedad moral".[15]
En 2004, varias otras comunas okupas alrededor de la ciudad fueron demolidas o desalojadas, aumentando el número de personas que llegaban a la Baticueva y disminuyendo el espíritu comunitario.[6] En 2006, el New York Daily News publicó un artículo sensacionalista sobre el espacio, caracterizándolo como violento, drogadicto y peligroso. El reportero habló con adolescentes y veinteañeros que contaban historias de drogadicción, mendicidad, una persona sin hogar arrojada por una ventana y un adicto que sufrió una sobredosis y fue dejado en la calle para que la policía lo encontrara.[16][17] Los propietarios, Shaya Boymelgreen, Isaac Katan y Africa-Israel Investments, que compraron la estructura en los años 2000, tenían planes de construir un gran proyecto de condominio llamado Gowanus Village en el terreno ocupado por el edificio y los lotes adyacentes. En respuesta a la noticia, mejoraron la seguridad del edificio, soldaron las puertas y contrataron a un guardia para mantenerlo despejado.[16][17][18] Architectural Digest señaló que, una vez desalojados los okupas ilegales, había pasado a ser un espacio sin uso y lo calificó como "un emblema de la gentrificación, el desarrollo urbano y el arte callejero".[19]
Artes 'underground' y exploración urbana
Como el plan de desarrollo de Gowanus Village no se concretó, la seguridad volvió a ser laxa. La Baticueva se convirtió en un lugar popular para artistas de grafiti, fiestas clandestinas, conciertos y exploradores urbanos a finales de los años 2000 y principios de la de 2010.[16] La parte superior del edificio, frente a la Tercera Avenida, ha mostrado una variedad de mensajes de orientación política pintados por artistas.[16][20][21] En 2008, los propietarios Africa-Israel y Katan, que habían terminado su relación con Boymelgreen, pusieron el edificio en el mercado por 27 millones de dólares. Al año siguiente, actualizaron la lista para decir "haz una oferta" y finalmente la vendieron en 2012 por 7 millones de dólares.[21] Incluso después de la venta, la gente se coló en las fiestas, atravesó vallas e incitó a los nuevos propietarios a reforzar la seguridad una vez más.[18][22]
Espacio para artistas
En 2012, la Powerhouse Environmental Arts Foundation, una organización fundada por el Joshua Rechnitz, compró la propiedad por 7 millones de dólares y dijo que quería convertir el lugar en un espacio de estudio para artistas.[23][10] Durante unos años después de la compra, Rechnitz y asociados discutieron el futuro del edificio con artistas locales, descubriendo una mayor necesidad de un espacio enfocado en la producción y fabricación de arte en lugar de un espacio de estudio.[24] Bajo el nombre Powerhouse Workshop, se planea incluir espacio y equipo para carpintería, metalurgia, cerámica, grabado y artes de fibra, así como espacio de exhibición.[14][24]
.jpg)
El estudio de arquitectura suizo Herzog & de Meuron, ganador del Premio Pritzker, está liderando la renovación y los arquitectos ejecutivos del proyecto son expertos en conservación y reutilización adaptativa, PBDW Architects (Platt Byard Dovell White Architects).[24][25] Herzog & de Meuron es conocido por muchos proyectos de alto perfil en Nueva York e internacionalmente, incluida la creación de espacios para las artes como la Tate Modern en Londres, también construida en una antigua central eléctrica.[14][19] Esta es la segunda colaboración entre los dos estudios de arquitectura. Su primera colaboración fue la restauración y el diseño de Park Avenue Armory.[25] La firma planea construir una adición de seis pisos en el sitio de la antigua sala de calderas, lo que aumentará los pies cuadrados del edificio de 6870 a 13 288 m².[14][26] Guardias armados, barandillas de seguridad y otras medidas se han implementado con miras a la remodelación, pero el edificio en sí permanecerá en pie y los arquitectos y desarrolladores han acordado tratar de preservar la mayor parte del grafiti en el interior como sea posible.[24] Originalmente, se planeó que Powerhouse Workshop abriera en 2020, pero a abril de 2020[14][24] la fecha de apertura se había pospuesto hasta 2021.[27]
Una evaluación ambiental encontró altos niveles de contaminación de bifenilos policlorados (PCB), así como otros problemas ambientales que requerirían limpieza.[16][28] Cuando la remediación fue certificada por el Departamento de Conservación Ambiental del Estado de Nueva York en enero de 2018, el material eliminado incluía 8,375 toneladas de suelo contaminado con PCB y 4,700 galones de aceite contaminado con PCB.[1]
En octubre de 2019, antes de la rezonificación planificada del área alrededor del Canal Gowanus, la Comisión de Preservación de Monumentos Históricos de la Ciudad de Nueva York designó la Baticueva de Gowanus y otras cuatro estructuras como monumentos oficiales de la ciudad.[29]
Referencias
- ↑ a b "NYSDEC Certifies Cleanup Requirements Achieved at Brownfield Site" (PDF). New York State Department of Environmental Conservation. January 2018.
- ↑ a b c d University of Wisconsin - Madison, Thomas E. (Thomas Edward) (1910). Electric power plants; a description of a number of power stations designed by Thomas Edward Murray. New York. Consultado el 26 de noviembre de 2021.
- ↑ a b c d e f g h i j k l "Brooklyn Rapid Transit Company (BRT) Central Power Station Engine House" (PDF). Comisión de Preservación de Monumentos Históricos de la Ciudad de Nueva York. 29 de octubre de 2019. Consultado el 20 de enero de 2020.
- ↑ «State RR Commissioners' Findings on BRT Service». The Brooklyn Citizen. 29 de enero de 1903. p. 7. Consultado el 26 de noviembre de 2021.
- ↑ «Must Have More Power - Newspapers.com». Brooklyn Public Library (en inglés). Consultado el 26 de noviembre de 2021.
- ↑ a b Leckert, Oriana (2015). "Batcave". Brooklyn Spaces: 50 Hubs of Culture and Creativity. The Monacelli Press. pp. 12–15.
- ↑ «New B.R.T Power House - Newspapers.com». Brooklyn Public Library (en inglés). Consultado el 26 de noviembre de 2021.
- ↑ «Improvements On BRT Delayed». The Standard Union. 17 de julio de 1903. p. 3. Consultado el 26 de noviembre de 2021.
- ↑ "Improved Power Facilities for the Brooklyn Rapid Transit Company" (PDF). The Street Railway Journal: 61. Febrero de 1903. Archivado (PDF) desde el original el 11 de diciembre de 2019. Consultado el 23 de abril de 2020.
- ↑ a b c d «History — POWERHOUSE WORKSHOP». web.archive.org. 23 de octubre de 2018. Archivado desde el original el 23 de octubre de 2018. Consultado el 26 de noviembre de 2021.
- ↑ «Plant to Be The Greatest in the World - Newspapers.com». Brooklyn Public Library (en inglés). Consultado el 26 de noviembre de 2021.
- ↑ «Half a Million for B.R.T Improvements». Times Union. 26 de agosto de 1904. p. 3. Consultado el 26 de noviembre de 2021.
- ↑ "B.R.T Central Powerhouse: Historical Background Report" (PDF). Higgins & Quasebarth. January 2005. p. 5. Archived (PDF) from the original on January 16, 2020.
- ↑ a b c d e Plitt, Amy (7 de marzo de 2017). «Gowanus Bat Cave will transform into an art space designed by Herzog & de Meuron». Curbed NY (en inglés). Consultado el 28 de agosto de 2022.
- ↑ a b c «The Vice and Vagrants of Old-School Gowanus». Narratively (en inglés estadounidense). 2 de enero de 2015. Consultado el 26 de noviembre de 2021.
- ↑ a b c d e f «Party's Over At Gowanus Batcave, But Mysterious Millionaire Will Make It "F*cking Cool": Gothamist». web.archive.org. 24 de febrero de 2018. Archivado desde el original el 24 de febrero de 2018. Consultado el 26 de noviembre de 2021.
- ↑ a b c Sederstrom, Jotham. «HOMELESS RULE AT THE 'BAT CAVE'». nydailynews.com. Consultado el 26 de noviembre de 2021.
- ↑ a b «Africa-Israel seeks again to sell Brooklyn property - Globes». en.globes.co.il (en hebreo). 5 de noviembre de 2009. Consultado el 26 de noviembre de 2021.
- ↑ a b Nast, Condé (9 de marzo de 2017). «Herzog & de Meuron Will Transform a Brooklyn Batcave into an Art Space». Architectural Digest (en inglés estadounidense). Consultado el 26 de noviembre de 2021.
- ↑ Robert (24 de septiembre de 2008). «Gowanus Building Updated for Wall Street Meltdown». Curbed NY (en inglés). Consultado el 26 de noviembre de 2021.
- ↑ a b Robert (31 de julio de 2008). «Gowanus Building Seems to Have Gone Anti-Corporate». Curbed NY (en inglés). Consultado el 26 de noviembre de 2021.
- ↑ Riesz, Megan. «Heavy metals? Heavy lifting? No, the most weighty problem at this Gowanus building is squatters • Brooklyn Paper». www.brooklynpaper.com (en inglés estadounidense). Consultado el 26 de noviembre de 2021.
- ↑ Goodman, J. David (23 de noviembre de 2012). «The Mysterious Mr. Rechnitz». The New York Times (en inglés estadounidense). ISSN 0362-4331. Consultado el 26 de noviembre de 2021.
- ↑ a b c d e Chaban, Matt A. V. (7 de marzo de 2017). «The Batcave, a Graffiti Landmark in Brooklyn, Grows Up». The New York Times (en inglés estadounidense). ISSN 0362-4331. Consultado el 26 de noviembre de 2021.
- ↑ a b Hubert, Craig (2 de noviembre de 2017). «Ambitious, Long-in-the-Works Plan to Turn Gowanus Batcave Into Artists Haven Is Back On». Brownstoner (en inglés estadounidense). Consultado el 26 de noviembre de 2021.
- ↑ Plitt, Amy (1 de noviembre de 2017). «Gowanus Bat Cave's tranformation into a shiny new arts space is moving forward». Curbed NY (en inglés). Consultado el 26 de noviembre de 2021.
- ↑ «Our Home — Powerhouse Arts». web.archive.org. 24 de abril de 2020. Archivado desde el original el 24 de abril de 2020. Consultado el 26 de noviembre de 2021.
- ↑ «Environmental Site Remediation Database Search». www.dec.ny.gov. Consultado el 26 de noviembre de 2021.
- ↑ «Five Gowanus buildings made landmarks ahead of rezoning». New York Daily News. Consultado el 28 de agosto de 2022.
Bibliografía adicional
- Murray, Thomas Edward (1910). «The Central Power Station of the Brooklyn Rapid Transit Company». Electric Power Plants: A Description of a Number of Power Stations. Selbstverl. pp. 109–138. – Una descripción técnica detallada de la central eléctrica a partir de 1910, escrita por el constructor, inventor y empresario estadounidense Thomas E. Murray
Enlaces externos
- Powerhouse Workshop, sitio oficial
- Preservando un templo de grafiti en Brooklyn, un video del New York Times de 2017 de Time Chaffee, Niko Koppel y Kaitlyn Mullin
.png)