Casa de playa Lovell
| Casa de playa Lovell | ||
|---|---|---|
| Lugar inscrito en el Registro Nacional de Lugares Históricos | ||
![]() | ||
| Localización | ||
| País | Estados Unidos | |
| Ubicación | Newport Beach | |
| Coordenadas | 33°36′21″N 117°55′05″O / 33.6059, -117.918 | |
| Información general | ||
| Estilo | arquitectura moderna | |
| Declaración | 5 de febrero de 1974 | |
| Construcción | 1926 | |
| Diseño y construcción | ||
| Arquitecto | Rudolf Schindler | |
La casa de playa Lovell es una residencia de estilo racionalista situada en la península de Balboa en Newport Beach, una ciudad turística en la costa de California (Estados Unidos). Se completó en 1926 y ahora es reconocido como una de las obras más importantes del arquitecto Rudolf Schindler, solo superada por la Casa Schindler, construida cuatro años antes para su familia como una casa de exhibición y un estudio. Ambas de estas primeras casas de Schindler se consideran hitos de la arquitectura moderna temprana en Estados Unidos.[1][2]
Sitio

La residencia está frente al mar, no lejos de The Wedge en Newport Harbour, en un vecindario de edificios apretados.
El sitio era un pequeño lote en una esquina en un paseo marítimo en la península de Balboa en el condado de Orange.[3] La casa está ubicada en la esquina noroeste del lote y cubre cerca de la mitad del área del sitio. La casa se protege de la calle en el lado oeste elevando las viviendas por encima del nivel de la calle y la playa.[3]
Arquitectura
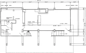
El espacio abierto a continuación revela los marcos de hormigón armado que se formaron en forma de 8. La entrada vehicular se encuentra en la planta baja del norte, que se constituye como la parte trasera de la estructura. La entrada principal se encuentra en el lado oeste, donde al acceso principal siguen dos escaleras atraviesan los marcos de hormigón que sostienen la estructura.[3] El más largo conduce hacia el mar y el espacio habitable, y el más pequeño hacia la parte trasera, hasta la cocina y el dormitorio.[3] El jardín está en el lado sur, entre la casa y la playa. El arquitecto Richard Neutra diseñó el plan de paisaje de la casa.[3]

El interior está organizado alrededor de una sala de estar / comedor de dos pisos, con ventanas de muro cortina de altura completa en el lado este y sur frente al mar. La cocina y el área de desayuno se encuentran en el lado norte del primer piso, con una terraza en el lado del mar sobre el jardín. Se proporcionaron lámparas y muebles empotrados como parte del diseño original. Las habitaciones del segundo piso están conectadas por un pasillo que da a la sala principal. Cada uno de los dormitorios originalmente tenía acceso a un porche abierto para dormir, pero Schindler los cerró en 1928.[4]
Contexto
El cliente del proyecto, Philip M. Lovell, se inspiró en un estilo de vida saludable, con pautas para una dieta y ejercicio adecuados.[5] Schindler también adoptó estos principios y abordó estas preocupaciones en el diseño de la casa de playa.[6] La disposición de las viviendas en el lado norte de la casa maximiza la circulación de aire fresco. Cada dormitorio está amueblado con ventanas para ventilación cruzada para eliminar la necesidad de aire acondicionado.[4]
Lovell también encargó otra casa en Los Ángeles. La Casa Lovell se completó en 1929 en Dundee Drive en Los Ángeles, tres años después de que se terminara la Beach House. Este encargo fue otorgado a Richard Neutra, quien vivía con su esposa en una parte de la casa y el estudio de Schindler entre 1926 y 1930. Estos dos arquitectos crearon casas que se convirtieron en formas clásicas del nuevo diseño residencial de California e íconos del movimiento moderno en Estados Unidos.[7]
Importancia histórica
La casa es un hito de la arquitectura moderna y por su importancia ha sido comparado con el Pabellón de Alemania en Barcelona por Ludwig Mies van der Rohe y Lilly Reich, o Villa Savoye de Le Corbusier.[2]
Schindler afirmaba que debido a los avances en materiales como el hormigón armado y el acero, el arquitecto era libre para diseñar utilizando “el espacio, el clima, la luz y humor".[3] Lovell Beach House muestra su esquema espacial en su estructura expuesta, que permite que la luz máxima llene la casa y aproveche las vistas al mar.[3]
La casa exhibe uno de los usos experimentales de hormigón armado de Schindler para ahorrar mano de obra y costos de materiales.[3] En la construcción de Lovell Beach House los marcos de los cinco pórticos de hormigón que sostienen la estructura se hicieron con el mismo encofrado.[3]
La sucursal de Los Ángeles de la Historic American Buildings Survey (HABS) documentó la casa en 1968. La casa de hoy tiene el mismo aspecto que las fotografías tomadas durante el estudio. El significado de la casa ya era evidente en ese momento:
La casa de playa Lovell generalmente se considera una de las mejores obras del arquitecto moderno pionero, RM Schindler. Demuestra un uso temprano del hormigón que antecede y predice el estilo brutalista de la posguerra, en el que el hormigón se deja sin pavimentar y la estructura es distinta del cerramiento. . . . La casa se eleva sobre su sitio de playa y se acuna en cinco marcos de concreto en forma de ocho. Estos se vertieron en su lugar. Las áreas cerradas se fabricaron en taller y se colocaron en posición. El juego de formas en los planos que avanzan y retroceden está relacionado con el movimiento De Stijl iniciado en los Países Bajos en 1917.[4]
The Beach House fue catalogado como Lugar Histórico Registrado en California el 5 de febrero de 1974.
Véase también
Referencias
- ↑ Other works by RMS Archivado el 15 de agosto de 2013 en Wayback Machine. MAK Center for Art and Architecture at the Schindler House
- ↑ a b Sarnitz, August E. (1986). «Proportion and Beauty-The Lovell Beach House by Rudolph Michael Schindler, Newport Beach, 1922-1926». Journal of the Society of Architectural Historians 45 (4): 374-388. ISSN 0037-9808. doi:10.2307/990208. Consultado el 6 de abril de 2021.
- ↑ a b c d e f g h i Schindler House/Studio Archivado el 13 de febrero de 2014 en Wayback Machine. MAK Center: Schindler House
- ↑ a b c Giebner, Robert C. (August 1968). «Lovell Beach House». Historic American Buildings Survey. Washington, D.C.: Library of Congress. Consultado el 14 de marzo de 2014.
- ↑ pls4e (6 de noviembre de 2018). «Lovell Beach House». SAH ARCHIPEDIA (en inglés). Consultado el 6 de abril de 2021.
- ↑ Schindler House/Studio Archivado el 13 de febrero de 2014 en Wayback Machine. MAK Center: Schindler House
- ↑ Sarnitz, August E. (1986). «Proportion and Beauty-The Lovell Beach House by Rudolph Michael Schindler, Newport Beach, 1922-1926». Journal of the Society of Architectural Historians (Society of Architectural Historians) 45 (4): 374-388. doi:10.2307/990208.
Enlaces externos
Wikimedia Commons alberga una categoría multimedia sobre Casa de playa Lovell.- Arquitectura de grandes edificios: P. Lovell House por Rudolf M. Schindler
- Centro MAK: Casa y estudio Schindler Archivado el 5 de febrero de 2014 en Wayback Machine.
- Colección de Arquitectura y Diseño Museo de Arte de la Universidad, Universidad de California en Santa Bárbara
