Casa Scaccabarozzi
| Casa Scaccabarozzi Fetta di polenta | ||
|---|---|---|
![]() | ||
| Localización | ||
| País | Italia | |
| Ubicación | Turín, Piamonte, Italia | |
| Dirección | Via Giulia di Barolo, 9 | |
| Coordenadas | 45°04′04″N 7°41′49″E / 45.067825, 7.696925 | |
| Información general | ||
| Estilo | Neoclásico con influencias eclécticas | |
| Construcción | 1840-1881 | |
| Altura | 24 m | |
| Detalles técnicos | ||
| Plantas | 9 (7 sobre el terreno) | |
| Diseño y construcción | ||
| Arquitecto | Alessandro Antonelli | |
| Contratista | Società Costruttori di Vanchiglia | |
La Casa Scaccabarozzi, conocida habitualmente por los turineses como Fetta di polenta (Fëtta 'd polenta en piamontés, literalmente «rodaja de polenta»), es un edificio histórico de Turín (Italia) situado en el barrio de Vanchiglia, en la esquina del Corso San Maurizio con la Via Giulia di Barolo. Antiguamente también era conocida como «casa luna» y «la espada».[1]
Su particularidad y el origen de su apodo residen en su color amarillo ocre y, sobre todo, en su singular planta con forma de trapecio muy estrecho, similar a una rodaja de polenta, lo que hace que una de sus fachadas laterales mida apenas cincuenta y cuatro centímetros.[2]
Diseñada por Alessandro Antonelli, su nombre oficial procede del apellido de la esposa del arquitecto, Francesca Scaccabarozzi, una aristócrata originaria de Cremona.[3][4] La pareja vivió en el edificio durante unos pocos años, trasladándose posteriormente a un edificio cercano, también diseñado por Antonelli, situado en la Via Vanchiglia 9, esquina con el Corso San Maurizio.
Historia

En torno al año 1840 se edificó, por voluntad de los marqueses de Barolo, el suburbio conocido inicialmente como el barrio del moschino debido a los numerosos insectos presentes dada la cercanía del río Po, correspondiente al actual barrio de Vanchiglia. Las construcciones fueron realizadas por la Società Costruttori di Vanchiglia, a la cual se sumó el arquitecto Alessandro Antonelli, futuro diseñador de la emblemática Mole Antonelliana. Antonelli también diseñó otros edificios residenciales en el barrio, incluida su propia residencia en la Via Vanchiglia 9, esquina con el Corso San Maurizio.
Como retribución por las obras le fue cedido el pequeño terreno situado en la esquina izquierda de la Via dei Macelli, coincidente con la actual Via Giulia di Barolo. Después de que fracasaran las negociaciones para adquirir el terreno limítrofe, quizá para ganar una apuesta o quizá como reto, pese a la exigua superficie de la parcela decidió construir en ella un inmueble de renta con un apartamento en cada planta, recuperando en altura lo que no se podía aprovechar en anchura.[5] El edificio fue construido en varias fases: en 1840 se construyeron las primeras cuatro plantas y, posteriormente, se le añadieron otras dos; en 1881, como mayor demostración de destreza técnica, se añadió la actual última planta.[6]
Tras superar el reto, Antonelli regaló el edificio a su esposa. Ya convertido en el símbolo del barrio, el edificio, que se oponía a las reglas clásicas de construcción de la época, se ganó rápidamente el apodo de fetta di polenta debido a su inusual planta con forma de trapecio y su color amarillo ocre. Además, también se hizo célebre por albergar en su planta baja el Caffè del Progresso, un histórico lugar de encuentro de los carbonarios y los revolucionarios en Turín.
Para hacer que se disiparan las dudas sobre su estabilidad y desafiar a los que sostenían que el edificio se derrumbaría, Antonelli se trasladó a vivir en él con su esposa durante varios años. También contribuyó a desmentir este rumor el hecho de que resistiera indemne a la explosión de la santabárbara de Borgo Dora del 24 de abril de 1852, que dañó gravemente muchos edificios de la zona. También resistió al terremoto del 23 de febrero de 1887, que dañó parte del barrio; por último, se salvó de los bombardeos de la Segunda Guerra Mundial, que golpearon duramente las manzanas de los alrededores.

En 1974, con ocasión del centenario de la muerte de Niccolò Tommaseo, el Ayuntamiento de Turín instaló una placa en recuerdo de su estancia en el edificio en 1859. Entre 1979 y 1982 el edificio fue objeto de una primera restauración importante, que incluyó una particular redecoración de sus interiores, realizada por el arquitecto y escenógrafo Renzo Mongiardino. Esta restauración afectó a las nueve plantas del edificio y lo transformó en una única vivienda.[7]
Incluido entre los edificios protegidos por la Superintendencia para el Patrimonio Arquitectónico de Piamonte, en marzo de 2005 el edificio fue objeto de una subasta judicial ordenada por el Tribunal de Turín[8] y fue adjudicado definitivamente en la tercera ronda de la subasta en enero de 2006. Entre el verano de 2007 y la primavera de 2008, el inmueble fue objeto de una remodelación global de los interiores y una minuciosa restauración conservativa encargada por el nuevo propietario. Desde marzo de 2008 hasta mayo de 2013 cambió de uso, albergando los proyectos de la Galería Franco Noero, volviendo posteriormente a su uso como residencia privada en verano de 2013, pese a mantener en su interior instalaciones de arte contemporáneo visitables en privado.
Características
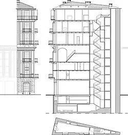
Para comprender mejor el desafío al que se enfrentó Antonelli, basta observar las dimensiones de los lados de este curioso edificio con planta con forma de trapecio: unos 16 metros hacia la Via Giulia di Barolo, 4.35 metros hacia el Corso San Maurizio y apenas 54 centímetros de pared en el lado opuesto a esta arteria.[2][9]

El edificio, construido completamente en piedra y ladrillos, está compuesto por un total de nueve plantas de alturas diferentes, todas ellas unidas por una estrecha escalera, con una altura total de 24 metros. Siete de las plantas están sobre el terreno, mientras que las dos restantes son subterráneas; es precisamente la profundidad de los cimientos lo que le confiere al edificio su estabilidad. En el lado de 54 centímetros, para aprovechar al máximo el espacio, Antonelli colocó un eje en el que instaló el conducto de humos y parte de las tuberías, y, originalmente, un cuarto de baño en cada planta.[5] La fachada trasera, opuesta a la Via Giulia di Barolo, carece completamente de ventanas, mientras que, observándolo desde el Corso San Maurizio, el edificio presenta una ligera inclinación hacia la calle adyacente.
Antonelli dedicó particular atención a los detalles y dotó al edificio de amplias ventanas y numerosos balcones; estos últimos sobresalen respecto a la fachada, al igual que las cornisas y las propias ventanas. El uso de este recurso es una solución arquitectónica que Antonelli usó para aprovechar al máximo el espacio interior del edificio. Debido a la estrechez de la escalera, es imposible trasladar cargas voluminosas a las plantas superiores. Por ello, para efectuar mudanzas se instaló originalmente una polea en la última planta.[10]
Las fachadas principales se caracterizan por su estilo ecléctico, con decoraciones neoclásicas y lesenas con relieves geométricos que se repiten a lo largo de toda su altura. La vistosa cornisa sobre la cuarta planta revela su antigua función de cornisa de la azotea en la primera fase de elevación del edificio. En total, hay ocho balcones y, en la última planta, un balcón perimetral que recorre toda la longitud de las fachadas principales.[11]


Hasta la importante redecoración de los interiores realizada por el arquitecto Renzo Mongiardino en 1979, el edificio estaba dividido en viviendas independientes, una en cada planta. Fue precisamente por obra de este arquitecto, amigo del entonces propietario, cuando el interior y el mobiliario asumieron un aspecto homogéneo, dotando a la vivienda de una linealidad y organicidad por sí mismas improbables dadas sus características físicas, aunque el propio Mongiardino admitió que la sensación final fue la de «residir en una torre formada por la superposición de muchos vagones de tren», autónomos pero conectados sabiamente.[12]
Entre 2007 y 2008 los interiores fueron remodelados radicalmente, poniendo en valor los elementos arquitectónicos originales del proyecto de Antonelli y manteniendo algunos de los elementos decorativos de valor añadidos por Mongiardino, entre ellos la hornacina de la última planta, que alberga una singular bañera de mampostería revestida con mosaicos, el baño turco del segundo sótano, la cocina, la decoración de las escaleras y otros accesorios.
Al mismo tiempo que se realizaban estas obras de remodelación se ejecutó una restauración conservativa que concluyó en marzo de 2008; con el objetivo de reconfigurar el diseño original de la fachada que da hacia el Corso San Maurizio y de restituir el acceso directo al local comercial de la planta baja, se restauró la puerta de acceso que había sido cerrada durante la remodelación de finales de la década de 1970 para albergar una ventana.
En los alrededores, al otro lado del Corso San Maurizio, en la Via Vanchiglia 8, esquina con la Via Verdi, se encuentra el Palazzo Birago di Vische, que también tiene una planta con forma de trapecio, aunque no tan estrecha. Debido a esta similitud, fue apodado fetta di formaggio («rodaja de queso»). El edificio fue realizado según un proyecto de 1847 firmado por el arquitecto Reycend para el adinerado marqués Birago. Alessandro Antonelli estudió durante algunos años la adición de una nueva planta, que sin embargo no sería efectuada por él, sino en 1854 según el proyecto del arquitecto Trocelli.
Véase también
Referencias
- ↑ Finocchi, 1989, pp. 42-44.
- ↑ a b Gabetti, 1989, pp. 127-133.
- ↑ di Crollalanza, 1895, p. 1075.
- ↑ «Osvaldo Guerrieri - I Torinesi» (en italiano). Archivado desde el original el 19 de octubre de 2017. Consultado el 23 de junio de 2022.
- ↑ a b Leva Pistoi, 1969, pp. 40-41, 70-86.
- ↑ Politecnico di Torino, 1984, p. 450.
- ↑ Gambarotta, Bruno. «Nella casa più pazza del mondo». La Stampa (en italiano). Archivado desde el original el 27 de enero de 2020. Consultado el 23 de junio de 2022.
- ↑ Paglieri, Marina. «La Fetta di polenta va all'asta». La Repubblica (en italiano). Consultado el 23 de junio de 2022.
- ↑ Noero, Franco. «Per tutti la Fetta di Polenta» (en italiano). mylocalguide. Archivado desde el original el 17 de diciembre de 2013. Consultado el 23 de junio de 2022.
- ↑ «La “fetta di polenta”» (en italiano). MuseoTorino. Consultado el 23 de junio de 2022.
- ↑ Centini, 2003.
- ↑ Mongiardino, 1998, p. 64.
Bibliografía
- di Crollalanza, Giovan Battista (1895). Annuario della nobiltà italiana (en italiano). Bari: Ed. Giornale Araldico.
- Leva Pistoi, Mila (1969). Torino: mezzo secolo di architettura 1865-1915. Dalle suggestioni post-risorgimentali ai fermenti del nuovo secolo (en italiano). Tipografia Torinese.
- Politecnico di Torino (1984). Dipartimento casa città, Beni culturali ambientali nel Comune di Torino (en italiano) 1. Società degli ingegneri e degli architetti in Torino.
- Gabetti, Roberto (1989). M. Lupano, ed. Alessandro Antonelli (en italiano). Milán: Clup. pp. 127-133.
- Finocchi, Daniela (1989). «La Fetta di Polenta». Torino Magazine (en italiano): 42-44.
- Rosso, Franco (1989). Alessandro Antonelli 1798-1888 (en italiano). Milán: Electa. pp. 229-231.
- Mongiardino, Renzo (2016). Francesca Simone, ed. Architettura da Camera (en italiano). Milán: Officina Libraria. pp. 70-79.
- Owens, Mitchell (1998). «Tall and well stacked». Nest (en italiano) (2): 74-85.
- Mongiardino, Renzo (1998). Fiorenzo Cattaneo, ed. Architettura da camera (en italiano). Milán: RCS Libri. pp. 62-66.
- Centini, Massimo (2003). La grande enciclopedia di Torino (en italiano). Roma: Newton & Compton Editori.
- Skoggard, Carl (2006). Joseph Holtzman, ed. Rooms (en inglés). Nueva York: Rizzoli International Publications. pp. 224-237.
- Humpries, Oscar (noviembre de 2010). «The House of Illusion». Apollo (en inglés): 56-61.
- Verchère, Laura (2013). Renzo Mongiardino. Décors et Fantasmagorie (en francés). París: Assouline. pp. 4, 50, 183.
- Kinmonth, Patrick (primavera/verano 2013). «Of lampshades and lavishness. A tribute to Renzo Mongiardino». A New (en inglés) (1): 76-77.
- Tovaglieri, Tommaso (2016). Omaggio a Renzo Mongiardino 1916-1998 (en italiano). Milán: Officina Libraria. pp. 53-54.
- Bell, Kirsty; Pace, Sergio (2019). A House of Three Corners (en inglés). Turín: Galleria Franco Noero.
Enlaces externos
- Rudy d’Alembert. «Polenta d'estate» (pdf). Rudi Mathematici. p. 3.
- «Fetta di Polenta a Torino raccontata da Carlo Pestelli».
- Fetta di Polenta (Turin) en YouTube.
- «Galleria Franco Noero: Fetta di polenta». civico13.it. Archivado desde el original el 11 de septiembre de 2015.
- «La fetta di polenta». Archivado desde el original el 21 de diciembre de 2016.
- Edifici surreali in Italia. Casa Scaccabarozzi, la 'fetta di polenta' di Torino: sfida impossibile del papà della Mole.
