Casa Robie
Casa Robie (Frederick C. Robie House) | ||
|---|---|---|
| Registro Nacional de Lugares Históricos | ||
| Ubicación | ||
| Coordenadas | 41°47′23″N 87°35′45″O / 41.789833, -87.595917 | |
| Ubicación | Chicago | |
| Datos generales | ||
| Construido | Junio de 1910[1] | |
| Arquitecto | Frank Lloyd Wright | |
| Estilo arquitectónico | Estilo de la pradera[nota 1] | |
| Nombramiento | 27 de noviembre de 1963 | |
| Agregado al NRHP | 15 de octubre de 1966 | |
| Visitantes | aprox. | |
| Administración | Universidad de Chicago | |
| Núm. de referencia | 66000316 | |
|
| ||
| Obras arquitectónicas del siglo XX de Frank Lloyd Wright | ||
|---|---|---|
|
Patrimonio de la Humanidad de la Unesco | ||
| Localización | ||
| País |
| |
| Datos generales | ||
| Tipo | Cultural | |
| Criterios | ii | |
| Identificación | 1496rev | |
| Región | Europa y América del Norte | |
| Inscripción | 2019 (XLIII sesión) | |
La casa Robie es una vivienda proyectada por el arquitecto estadounidense Frank Lloyd Wright. Es alabada como la obra culmen de sus casas de la pradera (en inglés, prairie houses)[2] y como uno de los edificios más representativos de la arquitectura del siglo XX. Ideada y construida entre 1908 y 1910, está inventariada como hito histórico nacional de los EE. UU..
Historia
Las casas de la pradera
En la década de 1900 Wright había desarrollado un lenguaje arquitectónico propio basado principalmente en las líneas horizontales, los aleros pronunciados y las plantas centradas en la figura del hogar. El mejor ejemplo de este modelo, que se conoció colectivamente como prairie houses (casas de la pradera) debido a su aparente inspiración en las extensas líneas horizontales comunes al paisaje de praderas que rodea Chicago, es la casa Robie.[3] Según Wright la horizontalidad, al trasladar formalmente la pradera del medio oeste estadounidense a los edificios, encarnaba los valores del país.[4] Importantes críticos e historiadores de la arquitectura como Pevsner y Giedion han preferido interpretar la casa Robie y las otras casas de las praderas en clave moderna, destacando la concepción maquinista de sus formas en lugar de la tradicional norteamericana, lo que permite equipararlas a las investigaciones formales y espaciales del Movimiento Moderno europeo de la misma época.[5][6] No obstante, en esos años Wright estaba verdaderamente preocupado por encontrar un nuevo estilo que reflejara la democracia y el pueblo estadounidenses, como se deriva de la Carpeta Wasmuth, un documento publicado en Berlín en 1910 que dio a conocer la obra del arquitecto en Europa.[nota 2] Y en cualquier caso, la concepción maquinista europea tenía en sus inicios la intención similar de crear un "nuevo estilo" arquitectónico que respondiera a la época.[7] La idea maquinista también estaba presente en Wright, quizá más arraigada que en Europa, pero no por ello renunció a la tradición. La importancia de la mecanización para Wright durante esos años se palpa en el ensayo El arte y el oficio de la máquina, de 1901.[8][6] En dicho escrito Wright ponía en valor la proyección de formas simples, fácilmente ejecutables mecánicamente.[9] Por otro lado, no se plantea la producción en serie, sino tan solo la máquina como un medio idealizado que permite una mayor perfección de las formas proyectadas.[6]
La idea de la casa de la pradera ya estaba definida en febrero de 1901, cuando Wright publicó en el Ladie's Home Journal los planos de una vivienda ideal que mostraba una planta en cruz con espacios que se deslizan en torno a una chimenea central y una doble altura que relaciona las dos plantas del edificio. Destacaban también el uso de largas líneas horizontales paralelas, las cubiertas irregulares proyectadas más allá de los espacios interiores, con inclinaciones escasas, la simplificación de las divisiones internas, la puerta cochera, la asociación unitaria y asimétrica de volúmenes enlazados entre sí y las ventanas-pantalla (de suelo a techo) alineadas en bandas. Esta concepción espacial, aunque Wright no la tratara entonces bajo términos espaciales, domina la mayoría de los setenta proyectos de casas de la pradera. En su conjunto, estas casas suponen una de las etapas proyectuales del arquitecto.[10][11][12][1] Junto con la casa Frederick C. Robie, son representativas del mismo las proyectadas para Avery Coonley e Isabel Roberts.[13]
El encargo
El cliente que encargó la casa fue Frederick Carlton Robie (n. 1879), un germano-estadounidense apellidado originalmente Räbe. Frederick, que no había terminado de cursar sus estudios de ingeniería mecánica en la universidad, se había interesado por las bicicletas, las motocicletas y los coches, e incluso había desarrollado un modelo experimental de automóvil. En 1908 su esposa y él, que vivían en un edificio de estilo georgiano en Hyde Park, Chicago, encargaron una vivienda de nueva planta a Frank Lloyd Wright, a construir en un terreno que adquirieron a tal efecto el 8 de abril de ese año. En el momento del encargo Frederick tenía 28 años.[14][2]
Auspiciado por sus ideas modernas y mecanicistas, Frederick quiso una vivienda innovadora y luminosa, que transmitiera ligereza, no fuese excesiva en su ornamentación, que evitara las curvas y cuyas habitaciones no estuviesen interrumpidas (en sus palabras, without interruption). Este pensamiento estaba en línea con el planteamiento arquitectónico de Wright, lo que posibilitó un buen desarrollo del proyecto.[15][16] Además de las estancias habituales, Frederick solicitó un área para la servidumbre, una sala de billar, vistas al parque, situado a una manzana de distancia en dirección diagonal al solar, y una manera de ver a sus vecinos por la acera sin ser visto.[17]
El encargo se efectuó en 1908. En 1909 el proyecto ya estaba resuelto y la casa comenzó a edificarse,[16] siendo concluida en junio de 1910.[1] La familia Robie ocupó la casa hasta diciembre de 1911, fecha en la que atravesaron dificultades económicas, familiares y matrimoniales, viéndose obligados a venderla solo catorce meses después de ocuparla por la suma cercana a los 50 000 dólares. Al año la casa fue revendida por muerte de su nuevo propietario y revendida en 1912 a otra familia, que la ocupó hasta su venta en 1926 al seminario teológico de Chicago, que la utilizó como residencia y comedor para estudiantes casados.[18][web 1]
La construcción
Los Robie desembolsaron una cantidad de 58 500 dólares, 1 500 menos de lo que habían pensado gastarse inicialmente. Desglosado, el cálculo suma 13 500 del solar, 35 000 del proyecto y la ejecución, y 10 000 del mobiliario.[web 1] Al cambio actualizado en 2001 correspondían a la cifra de 600 000 dólares. El edificio ocupa una superficie total de 841,9 m²,[web 2]
Wright tan solo supervisó las fases preliminares de la obra, que la constructora, H. B. Barnard Co., comenzó el 15 de abril de 1909. Durante la misma el arquitecto cerró su estudio en Oak Park para viajar a Europa, dejando la casa Robie, entre otras obras, a cargo de su compañero Hermann von Holst. A pesar de que se considera que la construcción de la casa terminó en 1910 -la familia Robie se mudó en mayo-, el mobiliario y otros elementos menores no se terminaron hasta enero de 1911.[web 1]
Intento de derribo
La evolución profesional de Wright se concretó en una estética original que destacaba las casas de la pradera allí donde se construían.[19] Hubo en Chicago a quien le disgustó la existencia de la casa Robie, e incluso quien la comparó con un barco de vapor en un intento por ridiculizar su modernidad, que a su juicio no casaba con la arquitectura que la rodeaba.[5]
En 1941 un estudiante descubrió la intención de demolición de la casa, lo que generó protestas en una universidad donde impartía clases, por ejemplo, Mies van der Rohe, gran maestro moderno y ferviente admirador de Wright.[web 1] En 1957 el seminario teológico de la universidad de Chicago anunció su intención de derruir la casa Robie para poder edificar una residencia de estudiantes. Esto provocó la ira de Wright, que con casi 90 años se personó en Chicago para defender el valor de su arquitectura y denunciar el plan de derribo. Encontró arquitectos y vecinos que apoyaron su denuncia, y que ya previamente habían abogado por la conservación de los tesoros arquitectónicos de la ciudad. Además obtuvo la adhesión del National Trust for Historic Preservation. A pesar de todo la casa estuvo a punto de ser demolida en julio de ese año. No obstante, la tragedia se evitó gracias a su compra por parte de William Zeckendorf, cuyo estudio Webb & Knapp comenzó una redefinición del barrio que, irónicamente, incluyó el derribo de 880 inmuebles.[20][18] Durante el proceso Wright describió la casa como la piedra angular de la arquitectura moderna.[1][nota 3]
Reconocimiento y restauración
Aunque la casa Robie fue considerada una obra maestra en Europa desde el momento en que se conoció, en Estados Unidos su aceptación fue desigual hasta bien entrado el siglo XX. Ese mismo año de 1957 el ayuntamiento de Chicago creó un comité que evaluara la importancia internacional de los monumentos de arquitectura e ingeniería de la ciudad. La casa Robie fue elegida como uno de los seis ejemplos de los edificios que debían incluirse en esta categorización.[21] De entre los seis, la comisión la catalogó como su primer hito arquitectónico internacional y recomendó al seminario reconsiderar el derribo. No obstante, la comisión pretendió salvar la casa mediante un pacto con el seminario para "trasladarla" a un solar cercano perteneciente a la universidad que hubiera sido cedido a tal efecto.[22] En 1958 la revista House and Home eligió la casa Robie como la mejor vivienda del siglo XX.[web 3][web 2]
El 27 de noviembre de 1963 fue designada hito histórico nacional (National Historic Landmark)[23] y donada a la universidad, que la utilizó como oficinas.[web 2] El 15 de octubre de 1966 entró en el registro nacional de lugares históricos (National Register of Historic Places), constituyendo una de sus primeras entradas. En 1971 fue reconocida como hito de Chicago.[1] Posteriormente fue devuelta a la universidad de Chicago.[22]
En 1992 la universidad entró en contacto con una fundación dedicada al arquitecto para diseñar un plan de restauración, pues el edificio había sufrido actos vandálicos y negligencias. En enero de 1997 alcanzaron un acuerdo y decidieron el inicio de las obras, que comenzaron en 2002. La casa sufría filtraciones de agua, daños en el enladrillado y flecha en los aleros, entre otros daños. Actualmente es visitable en lunes y jueves. La casa Robie está actualmente postulada como candidata a patrimonio de la humanidad.[24][18][web 4][web 2]
Emplazamiento
La casa Robie se construyó en un solar esquinero y angosto entre la Calle Este 58.º y la avenida Woodlawn, en el barrio de Hyde Park, Chicago.[25][16] Ostenta el número 5757 de la avenida Woodlawn.[26] Sus medidas aproximadas son de 18 x 55 metros.[web 1] La casa se construyó como un edificio aislado rodeada por algunos árboles.[17] Una particularidad del solar es que se encuentra en la mayor metrópoli del medio oeste estadounidense, un emplazamiento diferente a los ambientes suburbanos y rurales de las anteriores casas de la pradera. A pesar de ello Hyde Park era un barrio periférico de la ciudad.[27]
La angostura del terreno hizo que Wright eligiera una planta con una única axialidad en vez de las dos habituales desde la publicación de su vivienda ideal para la pradera en 1901.[27][28] La casa se sitúa paralela a la calle, algo habitual en las viviendas wrightianas de la primera década del siglo XX.[12]
-
Solar arbolado en esquina. Enfrente, la universidad de Chicago.
-
Apreciación de la acera. La casa puede observarla y a la vez ganar intimidad gracias a los muros que explotan la caja, según la concepción wrightiana. Detrás, no hay calle.
Arquitectura
Características funcionales
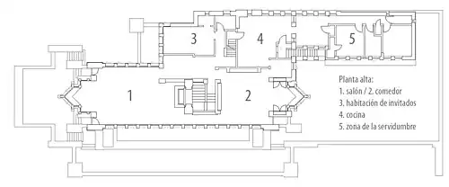
La casa Robie cuenta con dos bandas desplazadas entre sí. La más pequeña se posiciona hacia la trasera del solar y contiene las dependencias de la servidumbre, la cocina y una habitación de invitados en planta primera, y la sala de calderas, el lavadero y una cochera con capacidad para tres vehículos en planta baja. El segundo cuerpo posee un núcleo central con las escaleras y la chimenea. El núcleo separaba parcialmente en su nivel semisótano un cuarto de juego para los niños y la sala de billar, y en su planta primera el salón y el comedor. El primero de los espacios cuenta con salida a un patio inglés y el segundo, a una terraza. Sobre todo ello están las dependencias. En los extremos de ambas plantas Wright proyectó unos salientes triangulares que, en planta primera, permitían observar la calle protegido por los grandes aleros, tal y como había pedido el cliente.[29] El nivel inferior no es un semisótano al uso, estando abierto al patio y éste, cerrado por los muros y las terrazas.[2][16] Los tamaños de las ventanas de ambos cuerpos, así como de los radiadores dispuestas bajo ellas, están adaptados a la orientación para hacer frente al clima de Chicago, caluroso en verano y frío en invierno.[web 5] En esencia, las estancias utilizables durante el día ocupan el volumen principal, con vistas a la calle y luz directa del sur, las de servicio están en el volumen alejado de la calle y las habitaciones de la familia ocupan un tercer piso perpendicular a ambos volúmenes.[web 6]
En planta baja el deslizamiento de los dos volúmenes, uno junto al otro, genera dos vacíos en la parcela de igual anchura que dichos cuerpos. El más amplio, que da a la calle, es un patio cercado por muros que sirve de entrada al garaje. El segundo es un espacio estrecho que da acceso al vestíbulo deslizándose desde el testero del solar, contra la trasera.[30] La posición del vestíbulo en el punto de conexión de los dos volúmenes recuerda la doble axialidad presente en las anteriores casas de la pradera.[2]

Características espaciales
Se ha señalado que Wright tomó como punto de partida al inicio de su carrera los espacios cerrados autosuficientes interconectados, propios de la tradición occidental,[31][nota 4] así como diferentes historicismos anglosajones y la tradición de las artes y oficios.[32] Sin embargo, al semiabrirlos y dividir las estancias principales mediante un núcleo aislado que aúna chimenea y escaleras, se crea una suerte de fluencia de espacios, complementada por unos aleros enormes que se adentran en el espacio exterior, combinándolo con el interior.[31] Aumentando la interacción y fluencia de espacios, el hueco de la chimenea presenta un hueco superior que permite una conexión visual entre el salón y el comedor.[web 1] La extensión hacia el exterior de las cubiertas, añadida a las perforaciones de los paramentos verticales, hacen que éstas parezcan flotar independientemente y separar espacios exteriores entre sí al igual que hacen los muros exteriores con las terrazas, en lugar de separar interior de exterior.[33] Estas características hicieron de la casa Robie un hito del desarrollo del concepto moderno de espacio, que se empezaba a explorar en Europa.[34][10]
-
Relación de espacios mediante una doble altura.
-
Sucesión de muros y terrazas que desbordan el espacio interior, rompiendo la idea espacial de "caja", habitual en el siglo XIX.
Características formales
A primera vista destacan los volúmenes cúbicos y los planos proyectados horizontalmente,[35] consiguiendo una libertad formal inexistente aún en Europa y que causó admiración en los pioneros del Movimiento Moderno.[36] El rasgo formal más destacado de la vivienda es su marcada horizontalidad. Todo está diseñado para remarcarla, desde la cubierta de enormes voladizos, hasta los rebordes interiores que contenían lámparas de globo y redes de instalaciones. Wright se preocupó incluso por el aparejo de los ladrillos. Utilizó un modelo de ladrillo alargado con pronunciados tendeles (juntas horizontales entre piezas) y llagas (juntas verticales) más estrechas. Hizo pintar los tendeles de color crema y las llagas del color del ladrillo; el efecto resultante es una sucesión de líneas de sombra horizontales.[37][2]
Los muros exteriores que cercan la casa, también de ladrillo, están rematados por albardillas de piedra blanca, que nuevamente destacan como una gran línea horizontal.[37] Dichos muros, especialmente en los extremos del volumen principal, junto con las terrazas, parecen hacer explotar la vivienda, extendiéndola hacia el exterior y eliminando la idea de caja imperante en el siglo XIX.[nota 4] Al mismo tiempo crean el efecto desde el exterior de que la planta alta está aislada, que no tiene relación con la semisótano.[27]
La horizontalidad, la axialidad, los materiales utilizados y las analogías formales han hecho que la casa Robie haya sido comparada con el paisaje que Wright vivió en su infancia, con los yates de vapor y otros artefactos de su contemporaneidad, y con edificios de la década de 1880 como la Ames Gate Lodge del laureado arquitecto estadounidense Richardson. Sin embargo la casa resalta el plinto, el hogar, la cubierta y el cerramiento, elementos arquetípicos de la vivienda desde Semper.[34]
-
Gran voladizo del cuerpo principal. Obsérvense los remates en piedra blanca de los parapetos y el cuerpo secundario desplazado del principal. -
Uno de los remates triangulares del cuerpo principal.
-
El volumen menor, desprovisto de la sucesión de muros y terrazas, no da a la calle. En la imagen, abajo, la entrada al vestíbulo.
Características constructivas
La base de la construcción es el ladrillo romano con matices ferrosos, cuyos muros bajos exteriores se cubren con piedra caliza, presente también en los arranques.[web 2] Las cubiertas poseen extensos voladizos que alcanzan los 6 metros de longitud. Estructuralmente liberan carga de los muros en que se apoyan al contrapesar las cargas del vano interior, permitiendo que dichos muros pudieran ahuecarse en una serie de ventanas que alcanzan el suelo y el techo. Además, los voladizos permiten una modificación ambiental que mantienen un colchón de aire caliente en invierno y funcionan como canal de extracción y lugar de sombra en verano. Para su construcción Wright tuvo que recurrir a vigas de acero encargadas a un astillero;[37][18] estas vigas se colocaron en techos y suelos para soportar los voladizos en balcones. Es precisamente por ellas que los muros pierden parte de su papel estructural.[web 1] Las hileras de ventanas marcan en éstos la sucesión de la estructura, complementada con el núcleo central de chimenea y escaleras. Gracias a que un gran muro es innecesario, las ventanas son alargadas y abundantes.[27] Las vigas de acero también posibilitan mayores luces, de manera que no son necesarios pilares ni grandes muros interiores, por lo que los espacios ganan en diafanidad. Como material de cubrición final de las cubiertas se utilizaron tejas encajables, cóncavas y convexas.[web 1] En cuanto a la construcción del núcleo central, ésta resulta de la unión de dos estructuras dispares; por un lado una masa de ladrillo que alberga la chimenea y, por otro, una caja de madera.[25]
A pesar del manifiesto interés de Wright por el uso de tecnologías avanzadas, que le permitieron liberar el muro de su función portante mediante el uso del hormigón armado[38] y construir los enormes voladizos gracias al uso de una buena cantidad de acero,[25] en la casa Robie no existe una estructura clara y sobre todo, no está a la vista. Esta característica es común al resto de casas de la pradera, cuyos sistemas estructurales suelen ocultarse.[39] En este sentido Wright intentó la eliminación de barreras interiores y la destrucción del muro como una manera de destruir el concepto de vivienda-caja,[nota 4] experimentación que le fue acercando al concepto de planta libre. No obstante, la estructura regular y clara de pilares propia de la modernidad no se estudió concienzudamente ni se generalizó hasta años después, aunque se produjeron intentos en los rascacielos de estructura de acero de la Escuela de Chicago, en cuyo seno había aprendido Wright.[40]
Mención aparte merece la aportación de Wright a la arquitectura bioclimática durante toda su carrera. Ya se ha hablado de la función térmica de los aleros y la diferencia en el tamaño de las ventanas según su orientación, ambos sistemas pasivos de climatización. Como sistema de aislamiento térmico Wright solo pudo utilizar una cámara de aire entre dos hojas para los paramentos exteriores y ventanas de un único vidrio, por lo que tuvo que diseñar un sistema central de calefacción. Para minimizar su uso las ventanas orientadas al sur son de mayores dimensiones, ya que captan más luz solar. Bajo las ventanas que miran al norte coloca los radiadores normalmente, pero en las que miran al sur, al ser también puertas, tuvo que ocultarlos bajo el nivel del suelo, funcionando y siendo registrables mediante el uso de rejillas. La chimenea, colocada en el centro del piso noble, lo acondiciona gracias a la gran inercia térmica de la masa de ladrillo visto que la rodea. En verano las ventanas de la fachada sur pueden abrirse completamente para aliviar el calor, tarea en la que juegan un papel importante los grandes aleros. Además, se produce una ventilación cruzada gracias a unas aberturas existentes en las ventanas del alzado norte.[web 7]
Detalles, interiores y mobiliario
Wright solía diseñar él mismo los elementos ornamentales.[nota 5] En este caso, en colaboración con George Mann Niedecken,[web 1] se ocupó de cada detalle, incluyendo los dibujos geométricos de puertas, ventanas y techos, las vidrierías, el mobiliario (del recibidor, el comedor y los salones) y las piezas textiles, entre ellas las alfombras.[27][24][18][web 1] Destaca el uso extenso que hizo de la madera de roble, tanto para los paramentos como para los muebles.[25][18] El perímetro del volumen principal está compuesto por filas de puertas y ventanas con vidriados de diseño. Sobre ellas dispuso unas luces ocultas por bandas de rejillas talladas en mandera que proyectan luz difusa sobre el suelo, mientras que del techo colgó unos globos de luz erróneamente llamados "a la japonesa".[2] Hay 29 clases de vidriado diferentes, colocados en un total de 175 puertas y ventanas.[web 1]
Wright diseñó un banco para acompañar la chimenea, centro de muchos de sus proyectos. Las líneas del techo ayudan a dar continuidad entre el salón y el comedor, parcialmente separados por ella.[41] En la cocina prescindió de la distribución tradicional, colocando juntos hornillo y fregadero, elementos habitualmente separados, para situarlos en el rincón más alejado del comedor. En cuanto al garaje, por petición de Frederick Robie, se incluyó una instalación de autolavado y un foso de reparación de vehículos. Y al proyectar los muros del espacio exterior incluyó una serie de jardineras alargadas en algunos de ellos.[web 1]
-
Interior. Las largas líneas del techo, dispuestas entre lámparas, contienen tendidos eléctricos y conductos de aire. El mobiliario es también de Wright. -
Vidriería de un resalte triangular. Los dibujos geométricos resaltan por contraste las partes transparentes.
Notas
- ↑ Frank Lloyd Wright es uno de los pocos arquitectos que pueden estudiarse como figuras individuales, y no adscritos solamente a uno o varios estilos o movimientos. La casa Robie coincide con una etapa proyectual de Wright que abarca los últimos años de la década de 1890 y toda la década de 1900. En esta época Wright diseñó modelos de casa de la pradera, como las llamó, que aunaban una concepción espacial original con influencias de las artes y oficios, la Escuela de Chicago, el estilo shingle, el reina Ana y otros. Al conjunto de las viviendas de esta época y de las de sus seguidores se le ha dado en llamar "estilo de la pradera". [[[#CITAREFCurtis2006|Curtis, 2006]], pp. 113-114].
- ↑ Wright fue invitado con 43 años para exponer su obra en Berlín, famosa por dar a conocer su obra en Europa, y en especial en Alemania y Holanda, cuyos arquitectos vanguardistas, como Mies van der Rohe y Pieter Oud, notaron en ellas la expresión formal de sus propias ideas. Ediciones Wasmuth sintentizó las obras de dicha exposición en una publicación de lujo [[[#CITAREFZevi2004|Zevi, 2004]], pp. 11] titulada, en alemán, Ausgeführte Bauten und Entwürfe von Frank Lloyd Wright [Marchand, Bruno, Théorie de l'architecture III, pág. 14].
- ↑ Wright jamás destacó por su modestia. La oración original, en inglés, asegura que la casa Robie es la cornerstone of modern architecture. [Langmead y Garnayt, 2001].
- ↑ a b c Durante casi todo el siglo XIX los edificios, y especialmente las viviendas, habían sido concebidos como una caja general que abarcaba otras cajas más pequeñas llamadas estancias. Esta concepción, favorecida por el método de agregación axial de Durand, que se convirtió en el método de proyección académico por antonomasia en Europa, recibió un fuerte rechazo por parte de los arquitectos integrantes del Movimiento Moderno.
- ↑ A finales del siglo XIX el movimiento arts and crafts (artes y oficios), del que Wright fue seguidor y maestro en América, concebía el proyecto arquitectónico bajo el concepto de obra de arte total; es decir, el diseño conjunto y cohesivo de la arquitectura en sí misma, el mobiliario, los apliques de las luminarias, la decoración y todos aquellos elementos que constituyen directa o indirectamente un edificio.
Referencias en la web
- ↑ a b c d e f g h i j k l Lego Architecture; Robie House (última consulta: 11 de octubre de 2011).
- ↑ a b c d e Buscador de arquitectura; Noticias de arquitectura. La casa Robie en restauración Archivado el 29 de enero de 2012 en Wayback Machine., 11 de marzo de 2001 (última consulta: 11 de octubre de 2001).
- ↑ Auspicia: Municipalidad de Gral. Pueyrredón; Frank Lloyd Wright arquitecto (enlace roto disponible en Internet Archive; véase el historial, la primera versión y la última). (última visita: 11 de octubre de 2011).
- ↑ Frank Lloyd Wright Preservation Trust; Frederick C. Robie House (Último acceso: 11 de octubre de 2011).
- ↑ Encyclopaedia Universalis (en francés); Robie House, Chicago (F. L. Wright) (última consulta: 12 de octubre de 2011).
- ↑ Marchand, Bruno (en francés); Théorie de l'architecture III' (última consulta: 12 de octubre de 2011).
- ↑ Energie solaire Blog (en francés); LVN5 Frank Lloyd Wright et la maison Robie. Lumière et ventilation naturelles. 2000 ans de développement technique Archivado el 2 de diciembre de 2010 en Wayback Machine. (última consulta: 12 de octubre de 2011).
Referencias bibliográficas
- ↑ a b c d e Langmead, 2001, pp. 124
- ↑ a b c d e f Weston, 2004, pp. 34
- ↑ Giedion, 2009, pp. 409-410.
- ↑ Maderuelo, 2008, pp. 39.
- ↑ a b Giedion, 2009, pp. 410
- ↑ a b c Benevolo, 2007, pp. 268-269
- ↑ Maderuelo, 2008, pp. 40.
- ↑ Curtis, 2006, pp. 93.
- ↑ Curtis, 2006, pp. 117.
- ↑ a b Sacriste, 2006, pp. 88
- ↑ Curtis, 2006, pp. 118.
- ↑ a b Zevi, 2004, pp. 10
- ↑ Sacriste, 2006, pp. 24.
- ↑ Hoffmann, 1984, pp. 3-6.
- ↑ Hoffmann, 1984, pp. 8-18.
- ↑ a b c d Langmead, 2001, pp. 125
- ↑ a b Curtis, 2006, pp. 124
- ↑ a b c d e f Langmead, 2001, pp. 126
- ↑ Sacriste, 2006, pp. 23.
- ↑ Waldheim, 2005, pp. 68-69.
- ↑ Waldheim, 2005, pp. 70.
- ↑ a b Cahan, 1995, pp. 102
- ↑ NHL, 2011, pp. 3.
- ↑ a b Penn, 2006, pp. 27
- ↑ a b c d Connors, 1984, pp. 18
- ↑ Castex, 1985, pp. 5.
- ↑ a b c d e Zevi, 2004, pp. 90
- ↑ Castex, 1985, pp. 42.
- ↑ Curtis, 2006, pp. 124-125
- ↑ Zevi, 2004, pp. 94.
- ↑ a b Hartt, 1989, pp. 1120-1121
- ↑ Curtis, 2006, pp. 113
- ↑ Ferrándiz Gabriel, 1998, pp. 55.
- ↑ a b Curtis, 2006, pp. 126
- ↑ Hartt, 1989, pp. 1122.
- ↑ Benevolo, 2007, pp. 272.
- ↑ a b c Curtis, 2006, pp. 125
- ↑ Sacriste, 2006, pp. 75.
- ↑ Norberg-Schulz, 2005, pp. 55.
- ↑ Norberg-Schulz, 2005, pp. 54.
- ↑ Vela Castillo, 2003, pp. 168.
Bibliografía
- Giedion, Sigfried (2009). «Espacio, tiempo y arquitectura. Origen y desarrollo de una nueva tradición». Reverté (edición definitiva). ISBN 9788429121179.
- Maderuelo, Javier (2008). «La idea de espacio en la arquitectura y el arte contemporáneos, 1960-1989». AKAL. ISBN 9788446012610.
- Sacriste, Eduardo (2006). «Frank Lloyd Wright. Usonia». Nobuko. ISBN 9789875840508.
- Hartt, Frederick (1989). «Arte. Historia de la pintura, escultura y arquitectura». AKAL. ISBN 8476004117.
- Hoffmann, Donald (1984). «Frank Lloyd Wright's Robie House. The illustrated story of an architectural masterpiece». Courier Dover Publications (en inglés). ISBN 0486245829.
- Zevi, Bruno (2004). «Frank Lloyd Wright. Obras y proyectos». Gustavo Gili (8.ª edición). ISBN 84-252-1211-1.
- Benevolo, Leonardo (2007). «Historia de la arquitectura moderna». Gustavo Gili (8.ª edición, revisada y ampliada). ISBN 978-84-252-1793-7.
- Curtis, William J. R (2006). «La arquitectura moderna desde 1900». Phaidon Press Limited (3.ª edición). ISBN 978-0-7148-9850-6.
- Norberg-Schulz, Christian (2005). «Los principios de la arquitectura moderna. Sobre la nueva tradición del siglo XX». Reverté. ISBN 9788429121070.
- Connors, Joseph (1984). «The Robie House of Frank Lloyd Wright». Universidad de Chicago (en inglés). ISBN 0226115429.
- Waldheim, Charles; y Rüedi, Katerina (2005). «Chicago architecture. Histories, revisions, alternatives». Universidad de Chicago (en inglés). ISBN 9780226870380.
- NHL, National Historic Landmarks Survey (2011). «Listing of national historic landmarks by State. Illinois (84)». www.nps.gov (en inglés). Archivado desde el original el 10 de abril de 2008.
- Weston, Richard (2004). «Plans, sections and elevations. Key buildings of the twentieth century». Laurence King Publishing (en inglés). ISBN 9781856693820.
- Penn, Elan; y H. Cremin, Dennis (2006). «Chicago. A pictorial celebration». Sterling Publishing Company, Inc (en inglés). ISBN 9781402723872.
- Ferrándiz Gabriel, Javier (1998). «Apolo y Dionisos. El temperamento en la arquitectura moderna». Universidad Politécnica de Cataluña. ISBN 8483019957.
- Cahan, Richard (1995). «They All Fall Down. Richard Nickel's Struggle to Save America's Architecture». John Wiley and Sons (en inglés). ISBN 0471144266.
- Langmead, Donald; y Garnaut, Christine (2001). «Encyclopedia of architectural and engineering feats». ABC-CLIO (3.ª edición) (en inglés). ISBN 157607112X.
- Vela Castillo, José (2003). «Richard Neutra. Un lugar para el orden. Un estudio sobre la arquitectura natural». Universidad de Sevilla. ISBN 9788447207367.
- Castex, Jean (1985). «Frank Lloyd Wright, le printemps de la Prairie House». Editions Mardaga (en francés). ISBN 2870093063.
Filmografía
- Hayward, Edward (director); Millikin, Sandra (voz y guionista). 1975 (editada en 1975 -Londres-, 1976 -Milton Keynes- y 2005 -Nueva York), en inglés y francés; Frank Lloyd Wright: the Robie House / Frank Lloyd Wright: la maison de Robie. Open University y BBC-TV.
Véase también
Enlaces externos
Wikimedia Commons alberga una categoría multimedia sobre Casa Robie.- Frank Lloyd Wright Preservation Trust (en inglés); Frederick C. Robie House. Página oficial sobre la casa Robie de la institución que lideró su restauración.
- Lego Architecture; Casa Robie. Información detallada sobre la historia, el diseño y la construcción de la casa.
- Youtube; Análisis de la casa Robie. Interesante vídeo que explica la casa sobre un modelo informático tridimensional.
- Blog de Michael Beggs (en inglés); Twenty Pictures of the Robie House, 2 de enero de 2010. 20 imágenes de la casa Robie, atendiendo especialmente a los interiores.